Cultural Centre of Nay : Winning entry!

20 July 2019
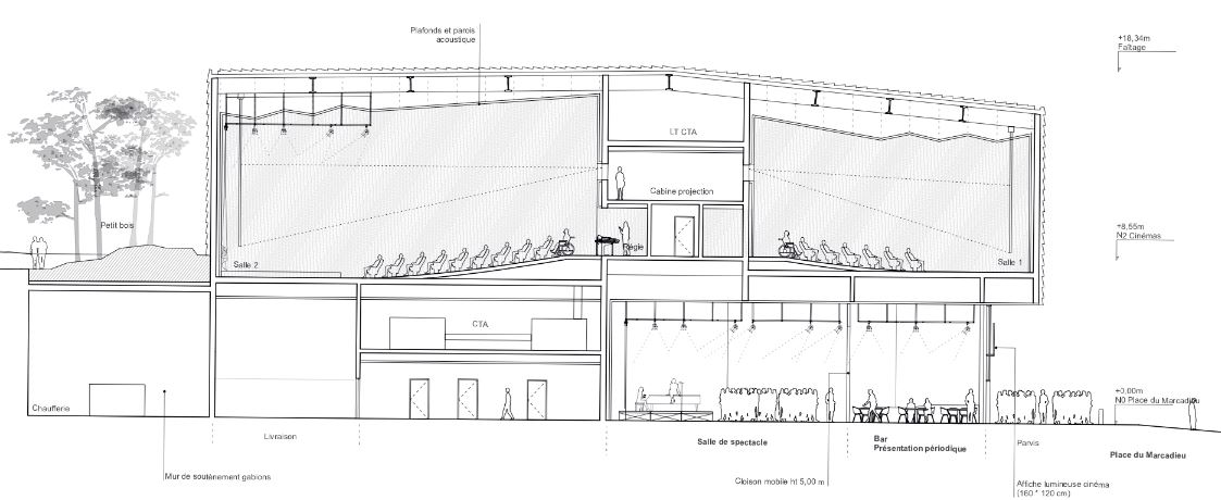
The Bordeaux architecture agency King Kong has just won the competition for the construction of a community cultural center in the Pays de Nay.

The project includes a media library with a mediation space and two 80 and 180-seat movie theatres.

Owner
Communauté de Communes du Pays de Nay
Architects
King Kong
Consultants
dUCKS Scéno : Scénographie
idB : Acoustique
Mirage Studio : Images 3D