Client
Team
ASBR: lead architect
Truwant + Rodet +: associate architect
Bollinger+Grohmann: structural engineering firm
INEX: TCE engineering firm
META: acoustician
VPEAS: economist
Camille Fréchou: landscape architect


Program
Building surface area: 788 m² / capacity: 97 people
Exhibition surface area: 290 m²
Stage opening: 7.5 m / stage depth: 7 m
Construction budget: 4 M € / scenography budget: 431 K€
Renovation of the auditorium / new temporary exhibition spaces / administrative spaces / logistics spaces
équipe ducks
Missions
Scenographic design / technical design and development of stage machinery systems / seating / audiovisual equipment / stage lighting
Visibility study / project coordination and monitoring / site supervision and handover
Scenography
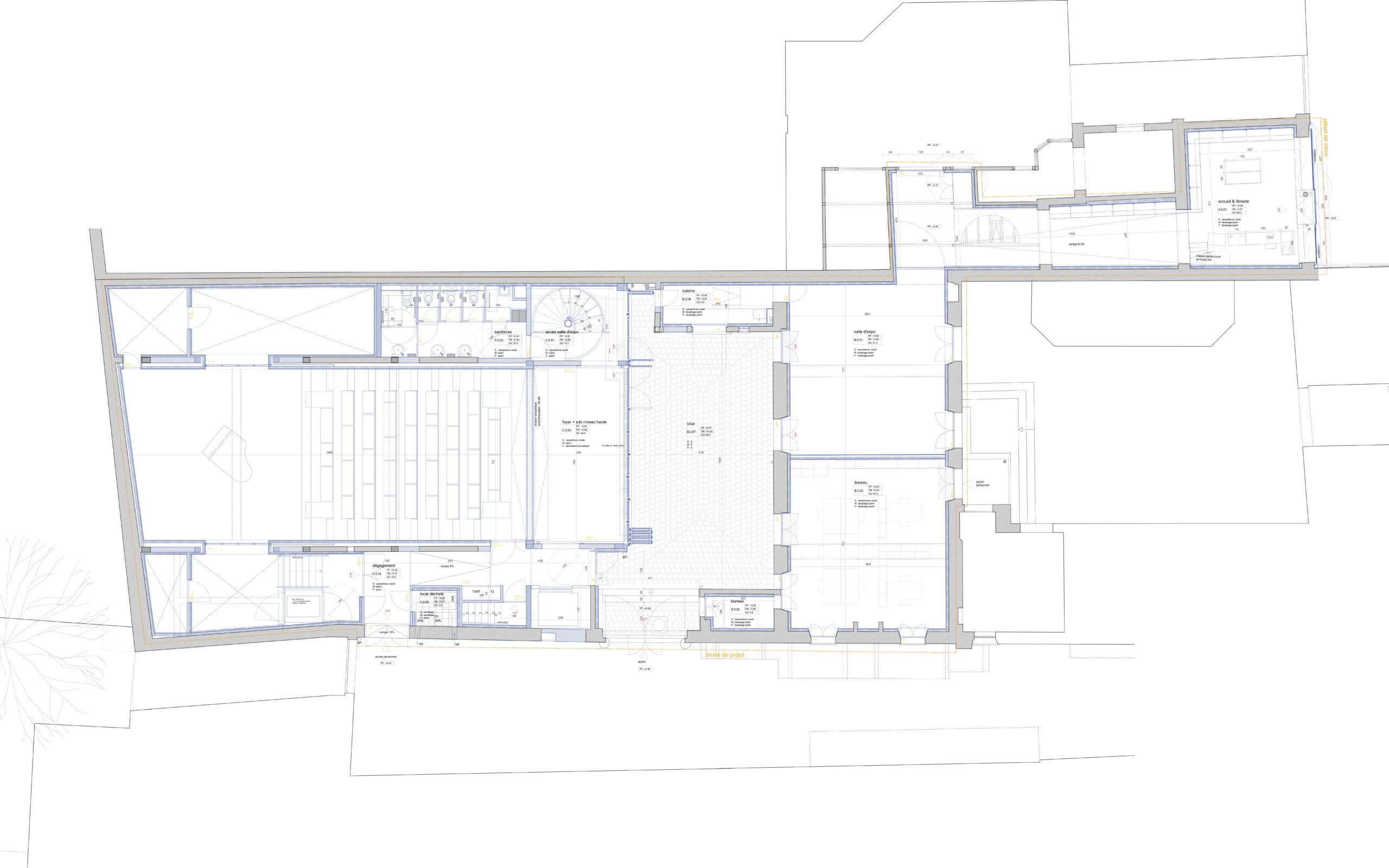
Thirty-five years after it opened, the Swiss Cultural Center needed to undergo a complete renovation in order to meet current safety, accessibility, and energy efficiency requirements. The project aims to integrate these new standards while preserving the intrinsic qualities of the venue and diversifying the conditions for welcoming the public and contemporary creation, both in the visual and performing arts. A multitude of small interventions reexamine the relationship between the contrasting spaces of the CCS, offering new opportunities for performance and exhibition.Modularity is at the heart of the architectural and scenographic project, with spaces that can be transformed according to the needs of users. For example, a SKYFOLD separates the auditorium from the lobby, allowing the stage area to be enlarged and different event configurations to be imagined. To reinforce this effect, the threshold between the lobby and the inner courtyard also allows the courtyard to be integrated into the heart of the stage area via a set of tall accordion doors. On the exhibition hall side, the aim here is to create as much space as possible by removing all the lining and reorganizing the technical areas. These two galleries are designed to be highly modular so that they can accommodate all types of works.
Missions
Scenographic design / technical design and development of stage machinery systems / seating / audiovisual equipment / stage lighting
Visibility study / project coordination and monitoring / site supervision and handover