Client
Team
AA Group : architect
Acoustique France : acoustician




Program
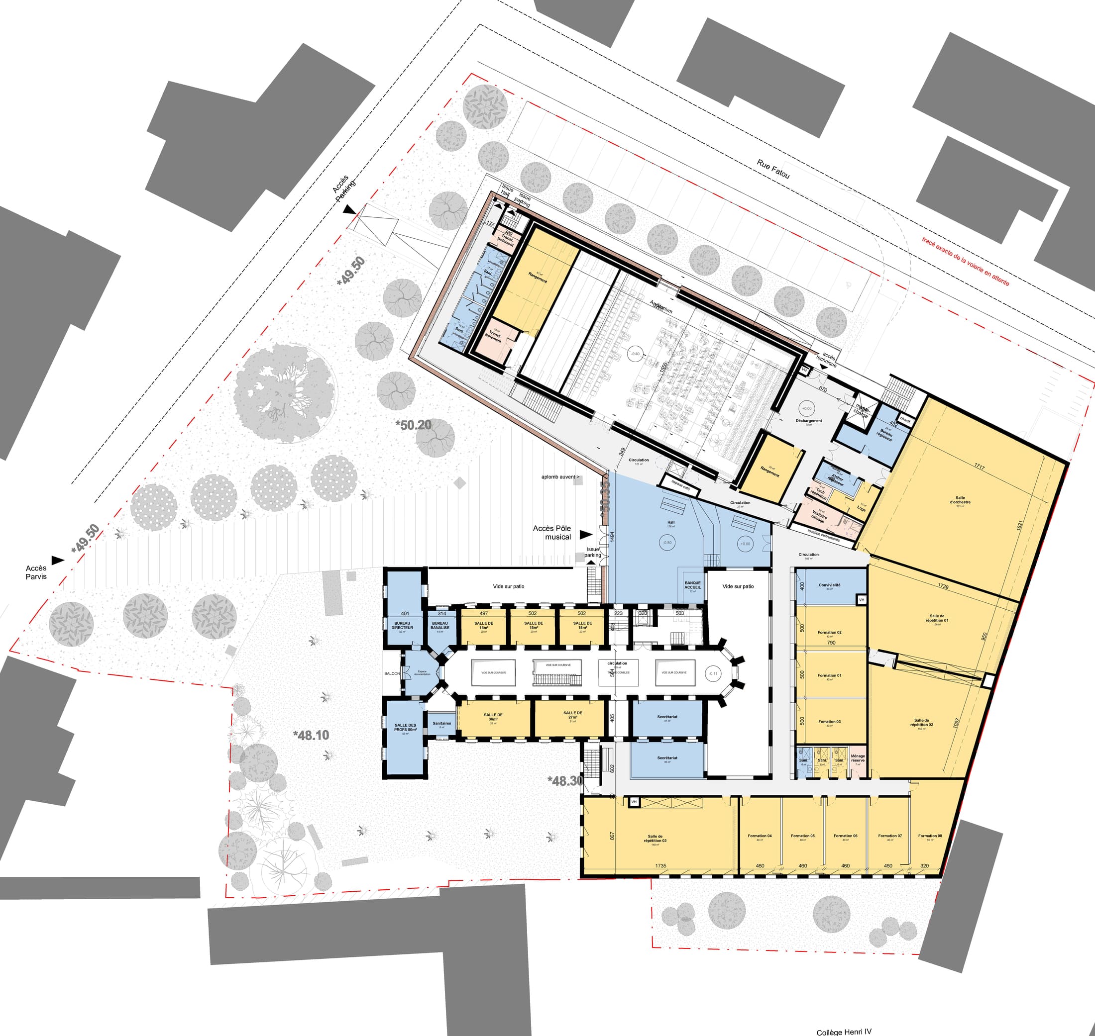
Building surface area: 4,500 m² / rehearsal rooms: 3×150 m²
Auditorium: 450 m² – 300 seats
Stage opening: 16 m / stage depth: 16 m
Stage height: 8.6 m
Construction budget: 13.6M€ / scenography budget: 1.11M€
Renovation, conversion, and extension of a prison into a music school / auditorium / rehearsal rooms / studios
équipe ducks
Missions
Scenographic design (spaces and operations)
Design and technical development of stage machinery systems / seating / audiovisual equipment / stage lighting
Visibility study / project coordination and monitoring / site supervision and handover
Scenography
The Simone Veil Music Center is a unifying project for the entire Meaux region. It brings together the Harmony and the Conservatory in a new shared home in the heart of the city. The project highlights two structures emerging from a revitalized green setting. The renovated former prison houses studios, classrooms, and offices around the iconic central nave, decorated with a fresco. A more contemporary extension interacts with the old prison. In a perforated steel shell, it houses a cozy 300-seat auditorium and extends into an airy base leading to large rehearsal and orchestra rooms. Here, audiences and music lovers enjoy modern facilities and high-quality teaching. The auditorium is designed as a place of creation and a reassuring setting for young musicians. It is also a public performance space, benefiting from excellent acoustic, visual, and aesthetic qualities. The stage equipment is designed to be flexible and adaptable, with a tiered stage that can be adjusted in height, a network of walkways, and high-performance lifting equipment. The central control room and its audiovisual and lighting networks make it a tool that is adapted to the latest requirements and protocols.The large rehearsal and orchestra rooms also offer ideal working conditions for musicians. Acoustic curtains, hanging rails, and podiums make these learning spaces adaptable and user-friendly.
Missions
Scenographic design (spaces and operations)
Design and technical development of stage machinery systems / seating / audiovisual equipment / stage lighting
Visibility study / project coordination and monitoring / site supervision and handover