Client
Team
FGA Workshop: architect
Rémi Pottier Workshop: heritage architect
IdB Acoustique: acoustician
OTEIS: BET TCE
Bibes Ergonomie: ergonomist



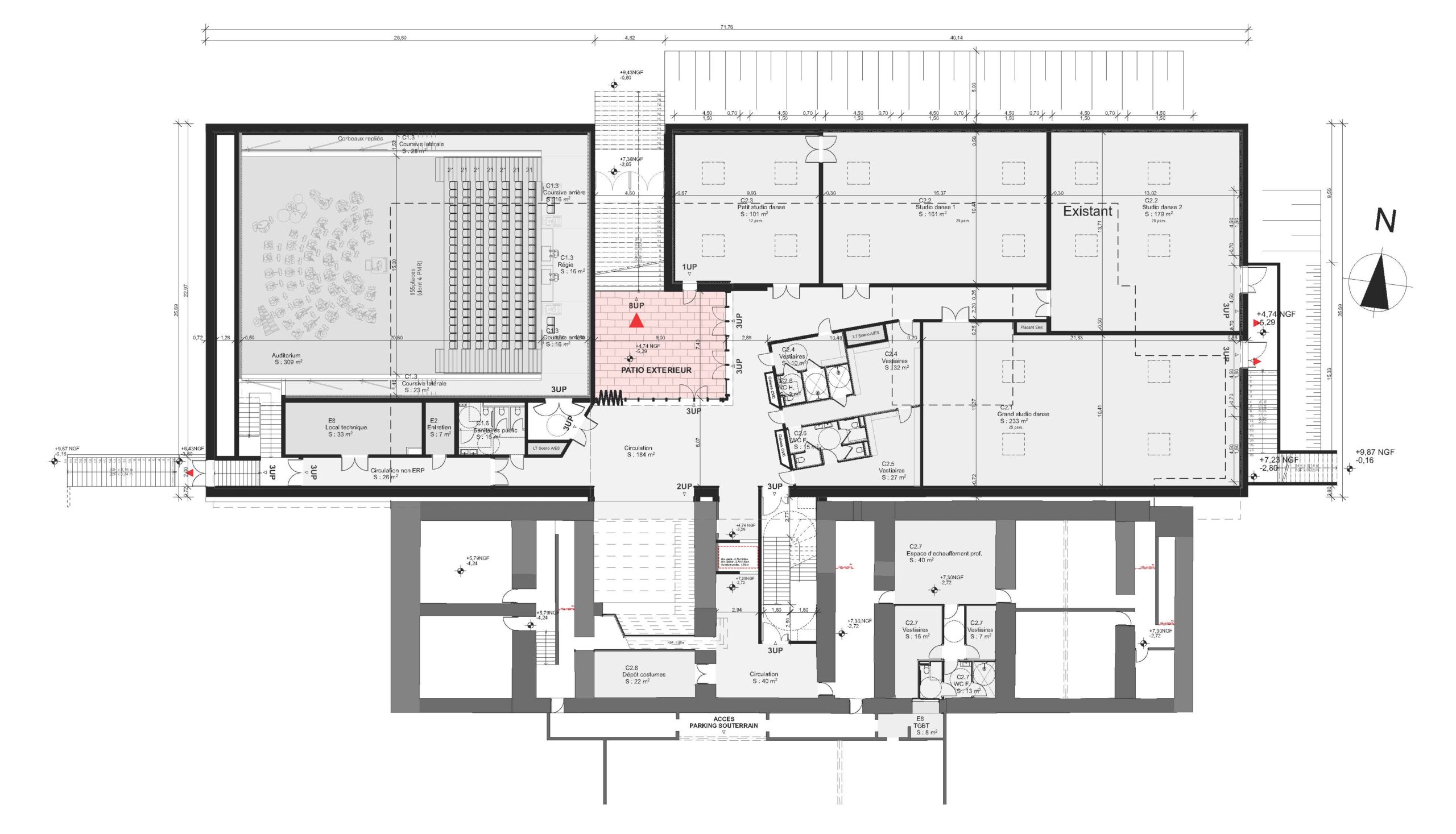
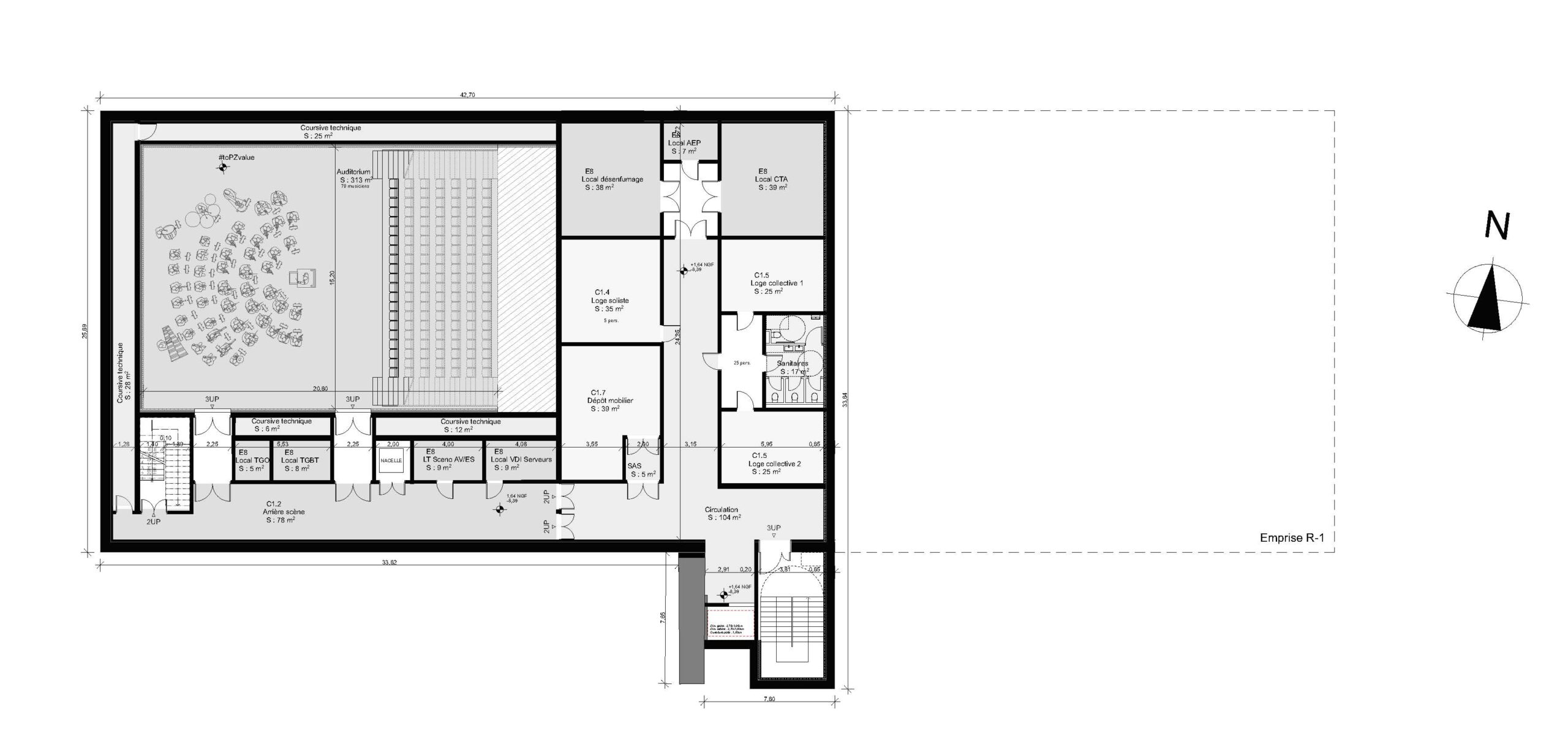
Program
Building surface area: 4,180 m²
Auditorium: 322 m² – 124 seats
Stage opening: 15 m / stage depth: 10 m
Stage height: 5 m
Construction budget: €11.6 M €
Scenography budget: €780,000
Renovation, extension, and conversion of a barracks into a music and dance conservatory
équipe ducks
Missions
Scenographic design (spaces and operations)
Design and technical development of stage machinery systems / grandstands / seats / audiovisual stage lighting / visibility studies / project coordination and monitoring / site monitoring and handover
Scenography
The Conservatoire de La Rochelle has found the perfect home for its activities in the former Chasseloup-Laubat military barracks. Restructuring this heritage site into a place of learning dedicated to music and dance is a bold and exciting challenge. In this shared space, students, teachers, and parents find the conditions for successful emulation. The project is designed to be humble and respectful of the site, enhancing the historic barracks with a discreet contemporary annex, buried underground and covered with vegetation. This basement extension connects the Great Hall and three dance studios around a bright central patio. The Hall extends into a large monumental tiered seating area, leading to the patio and offering a welcoming space for all users. The Great Hall, which is used for creation, performance, and mediation, is designed to be highly modular. Its shock-absorbing dance floor is suitable for choreography, while also allowing for the installation of a grandstand during auditions or public performances. Musicians benefit from adapted and variable acoustics. The walls, curtains, and acoustic reflectors combine harmoniously with the stage rigging and lighting equipment. An automation system and finely dimensioned networks offer two levels of use: simplified for students/teachers and professional for technicians/stage managers. The conservatory’s numerous dance and orchestra studios also offer ideal working conditions for students. Interconnected networks, mirrors, curtains, and dance floors make them ideal learning spaces.
Missions
Scenographic design (spaces and operations)
Design and technical development of stage machinery systems / grandstands / seats / audiovisual stage lighting / visibility studies / project coordination and monitoring / site monitoring and handover