Client
Team
Atelier Marc Barani : architect
Khephren Ingénierie : structural engineering
Espace Temps: fluid engineering
Eléments Ingénieries : HQE
ACL : lighting design
ACV : acoustician
Récompenses
Prix d’Architecture d’A 10+1







Program
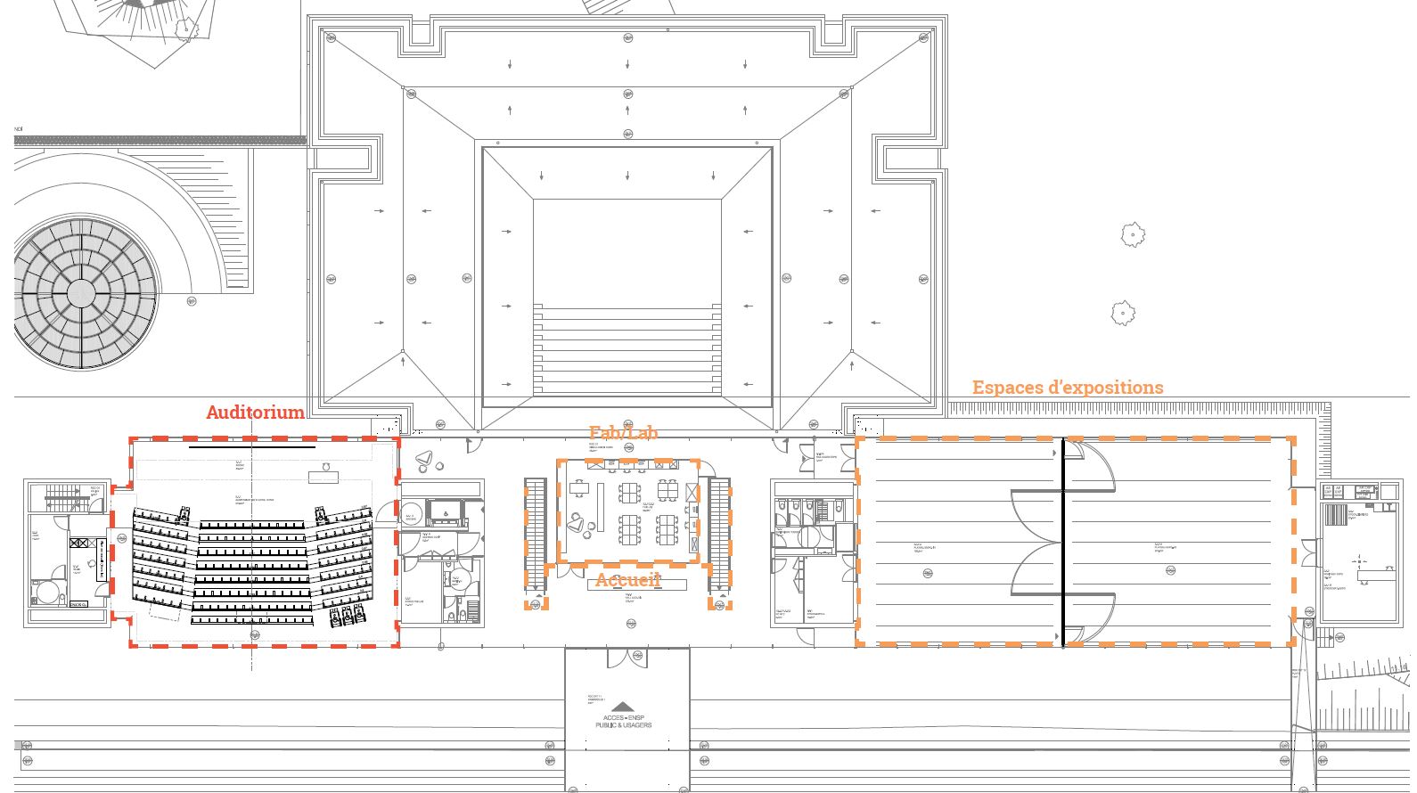
Building surface area: 5,000 m² / exhibition space: 450 m²
Auditorium capacity: 185 seats / construction budget: 11 M €
Construction of the school / workspaces / library / photography studios / outdoor amphitheater / fablab / gardens
équipe ducks
Missions
Scenographic design of the auditorium / exhibition and display space design / cyclorama design / audiovisual engineering / stage machinery and metalwork / site supervision and handover
Scenography
The ENSP, with its national and international focus, is a place of teaching, research, and creation. Image dissemination is at the heart of the project, both as a medium for research and/or teaching, but also for dissemination to all audiences. The building has three levels: the street level houses the main public functions (reception, auditorium, and exhibition spaces); the middle level is dedicated to continuing education, exhibition spaces for student work, administration, and the library. The garden level houses the laboratories, classrooms, and three photography studios. The transparency of the architecture allows the building to open up widely and expose itself to the public, thus conveying an image of the school’s activity. Filtration and blackout curtains allow for the modulation of both visibility from the outside and, as needed, the amount of natural light entering the building. The exhibition and display spaces are designed to be “capable” and easily accommodate all types of exhibition devices, including traditional supports such as picture rails and hanging supports, as well as audiovisual devices such as projections, screens, and art installations. The project combines high standards of quality, flexibility, and ease of use.
Missions
Scenographic design of the auditorium / exhibition and display space design / cyclorama design / audiovisual engineering / stage machinery and metalwork / site supervision and handover