23070 –
Completed
– 2004

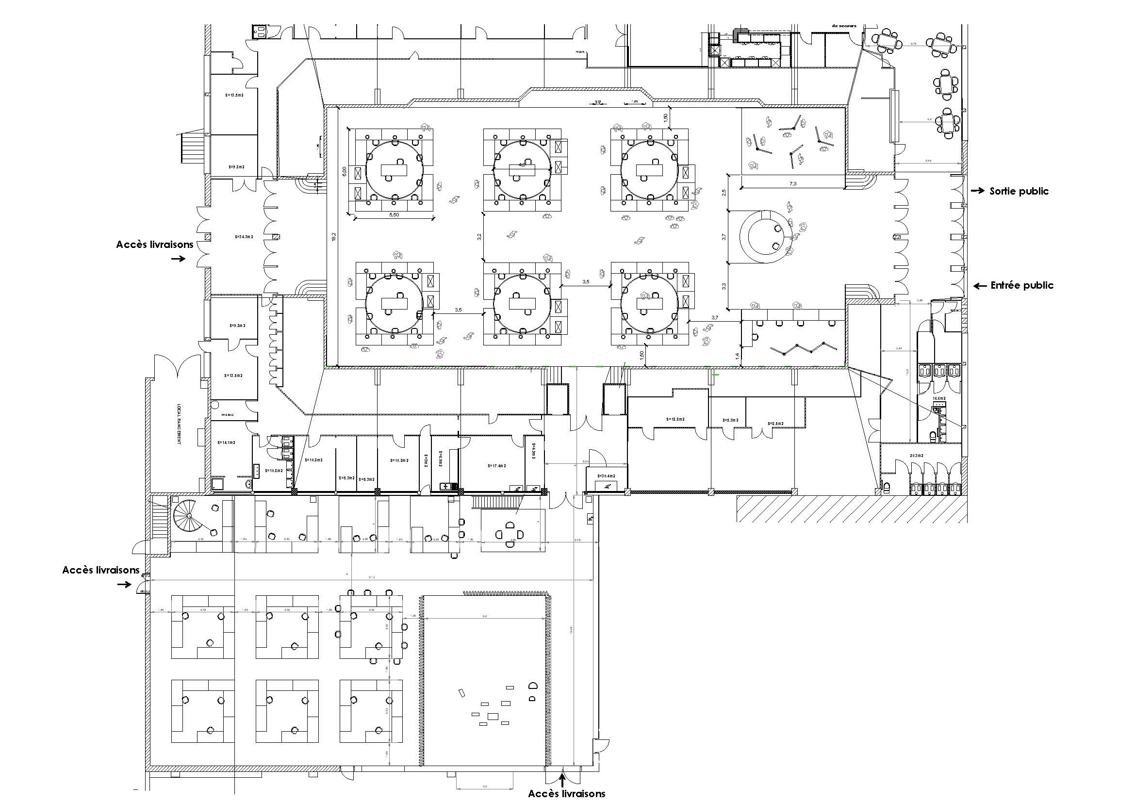
Fête du livre jeunesse 2024

Villeurbanne (FR)

Client

Team

Museum & exhibition

Program

équipe ducks

Eva
Cindy, Wided Zina

Missions

Scenography

Missions