Client
Team
Gehry Partners – STUDIOS : architect
Nagata Acoustics: acoustician
dUCKS scéno: scenographer





Program
Building surface: 7 000 m² / seating capacity: 330 seats
Frame opening: 14 m / scene depth: 7 m
Scenographic budget: 6.5 M€
Creation of a modular auditorium for concerts and events.
Advice on museum installations
équipe ducks
Clément, Aldo, Ilana, Kevin, Mathieu, Michel, Willy
Missions
Scenographic design (spaces and operation)
Design and technical development of stage machinery systems / seats, grandstands and platforms / audiovisual systems / stage lighting systems
Advice on museographic displays
Study of seating and visibility
Project coordination and management
Site supervision and handover
Scenography
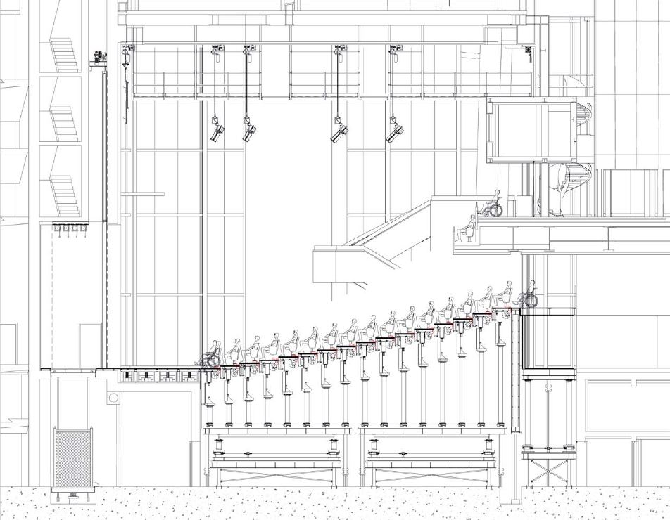
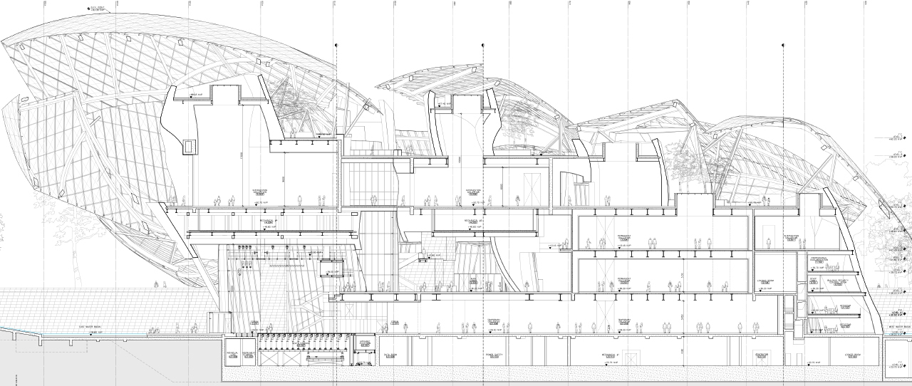
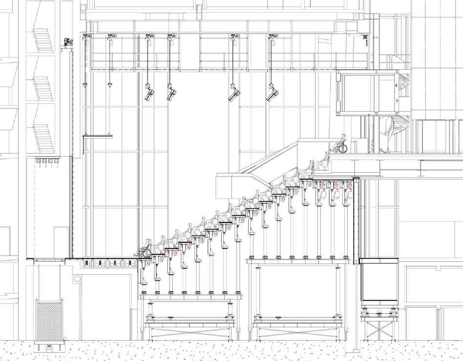
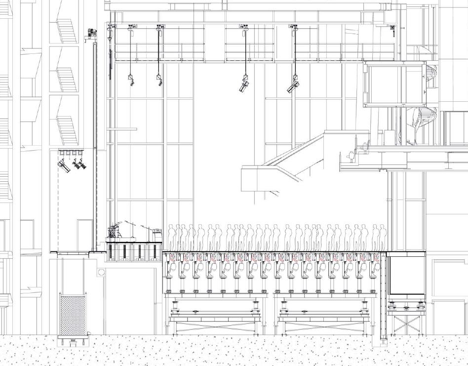
The Louis Vuitton Foundation has been installed since 2014 in the concrete, wood and glass vessel designed by Gehry Partners on the edge of the Jardin d’Acclimatation. In addition to the 3 850 m² of museum space dedicated to contemporary art exhibitions, a modular auditorium hosts conferences, concerts, and events throughout the year. The auditorium, entirely glazed, is equipped with an automatic transformable stage allowing to move from a large flat space to a stage of 330 seats in a few tens of minutes. Above the auditorium, a network of technical walkways and motors hangs the lighting, sound and video equipment required for events. The proscenium consists of six motorized elevators that can be configured to allow for varied stage arrangements.A mini stage cage with a number of carriers overlooks the back stage. Artist Ellsworth Kelly created the work « colored panels » for the auditorium and the German-operated backstage curtain (Spectrum VIII). Roman-style curtain devices allow the vast glass façades to be darkened, creating the necessary blackout conditions for performances. The entire stage machinery is controlled by a computerized system renovated in 2023.
Missions
Scenographic design (spaces and operation)
Design and technical development of stage machinery systems / seats, grandstands and platforms / audiovisual systems / stage lighting systems
Advice on museographic displays
Study of seating and visibility
Project coordination and management
Site supervision and handover