Client
Team






Program
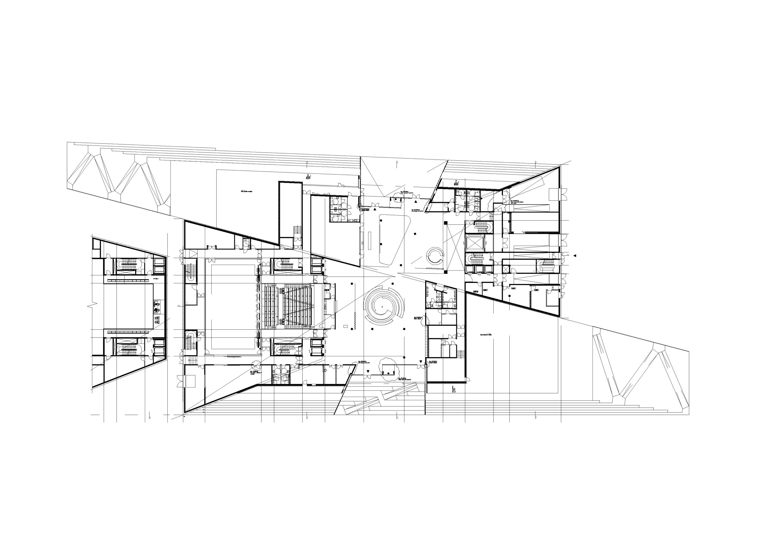
Building surface: 12 300 m²
Seating capacity: 250 seats
Construction budget: 27.84 M€
Scenographic budget: 1.12 M€
MECA brings together three regional entities: FRAC, OARA, and ALCA, dedicated to visual arts, literature, cinema, audiovisuals, and performing arts / modular exhibition spaces / dance studio / performance hall with a 25 m x 15 m stage / 23 m high stage tower / research, creation, and production laboratory
équipe ducks
Missions
Scenographic design for the various exhibition spaces and the conference room.
Focus on access and circulation, the distribution and flexibility of the infrastructure.
Stage and audiovisual engineering.
Scenography
La Méca offers professionals a unique and expanded platform by providing artist residencies, an exceptional stage, a screening room, new exhibition possibilities, and an incubator for young talent—all within a 12,000 m² iconic building.La Méca aims to be flexible, technical, and welcoming. The AGORA, serving as a luminous, open lobby, is at the heart of public interaction. One part of the building is dedicated to FRAC, with modular exhibition spaces where natural and artificial light can be controlled and complement each other, along with a conference room and ALCA’s screening room. The other part of the building is dedicated to live performances in various stages of creation or rehearsal, from dance to theater, music, and circus arts. OARA and the creative studio offer performance spaces with a 25 m x 15 m stage, a fully motorized 23 m high stage tower, 80 m² of mirrors, and 27 m of dance bars. The public area of the performance hall is equally versatile, with mobile infrastructure, telescopic seating, a coverable pit, where the hall can become the stage, the audience can face each other, or when the actors are in the control room!
Missions
Scenographic design for the various exhibition spaces and the conference room.
Focus on access and circulation, the distribution and flexibility of the infrastructure.
Stage and audiovisual engineering.