Client
Team
SILT : architects
dUCKS scéno : scenographer
Peutz : acoustician
Vessière : structure
GBA & co : fluide




Program
Building surface area: 22,712 m²
Exhibition surface area: 700 m²
Event hall surface area: 2,320 m²
Construction budget: 8,500,000 M €
Scenographic work budget: 810,000 M €
Creation of exhibition hall / new permanent and semi permanent exhibition spaces
Creation of event hall / educational workshops / manufacturing and maintenance workshop / hotel
équipe ducks
Missions
Scenographic design (spaces and operations) Design and technical development of stage machinery/ audiovisual/stage lighting/museum lighting systems Project coordination and monitoring Site monitoring and handover Leader scenographer
Scenography
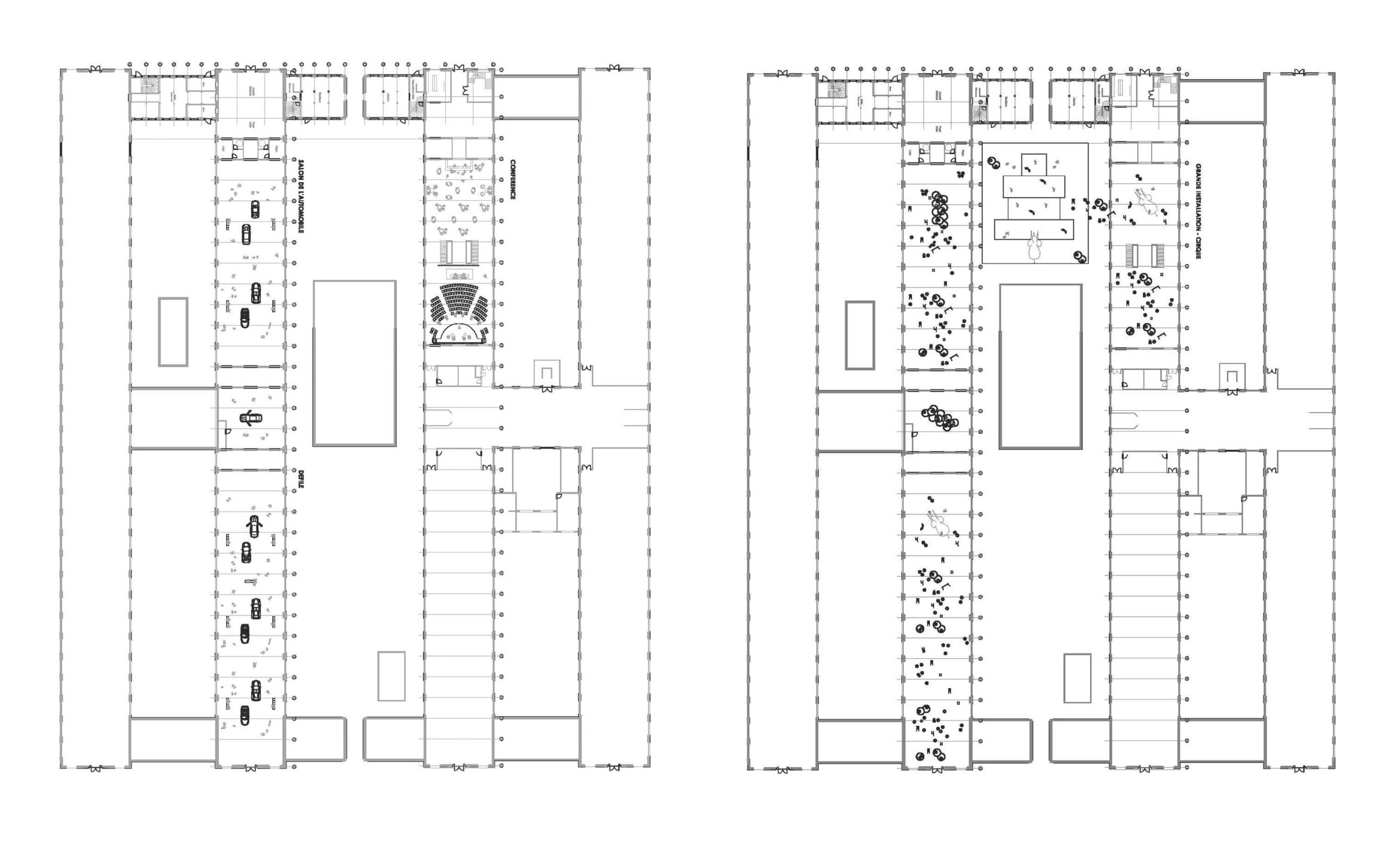
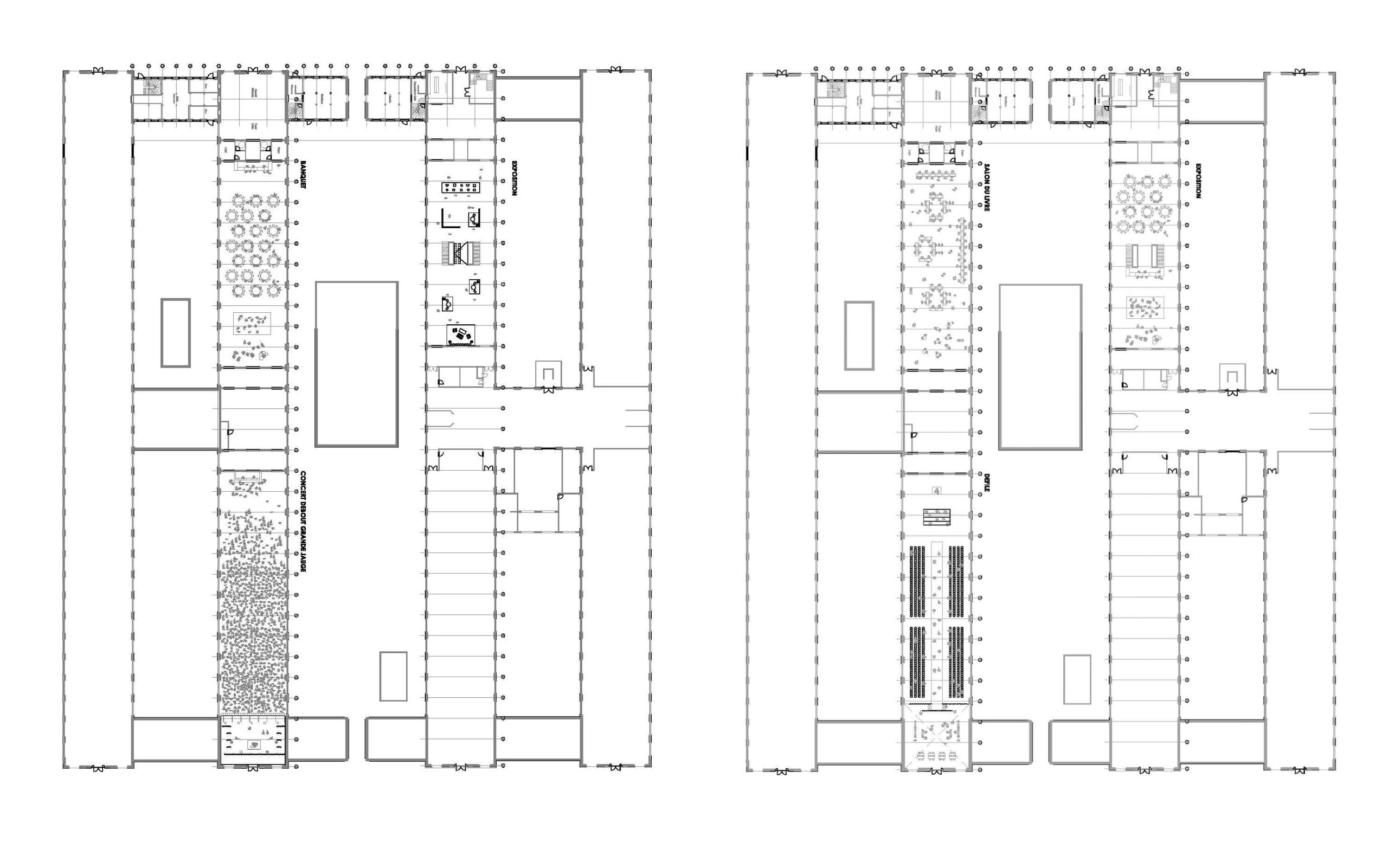
Part of the H buildings of the former Saint-Étienne arms factory has been converted into exhibition space and event rooms. Hall 242 has become the National Design Gallery, with its educational space and logistical facilities. It hosts semipermanent exhibitions from prestigious national collections. Covering an area of 700 m², the hall has been transformed into a “functional” space thanks to staging devices that are finely integrated into the existing architecture. This technical network allows staging and museography equipment to be suspended… Building 243 is divided into two event rooms with VIP areas, backstage areas, and a manufacturing workshop. They host a wide range of events: live shows, entertainment, circuses, conferences, exhibitions, etc. Our scenographic and technical choices transform the existing building into an agile, intelligent, and flexible scenographic machine. The existing framework becomes a stage grid “capable” of suspending various stage equipment. The entire system offers multiple spatial configurations.
Missions
Scenographic design (spaces and operations) Design and technical development of stage machinery/ audiovisual/stage lighting/museum lighting systems Project coordination and monitoring Site monitoring and handover Leader scenographer