Client
Team
Ferrier Marchetti Studio : architect
BOA : lighting design Peutz : acoustician



Program
Building surface area: 5,378 m²
Capacity: Red Space: 5,350 seats / White Space: 5,500 seats
White Space opening: 31 m / stage depth: 15 m
Construction budget: 29 M € / scenography budget: 2.4 M €
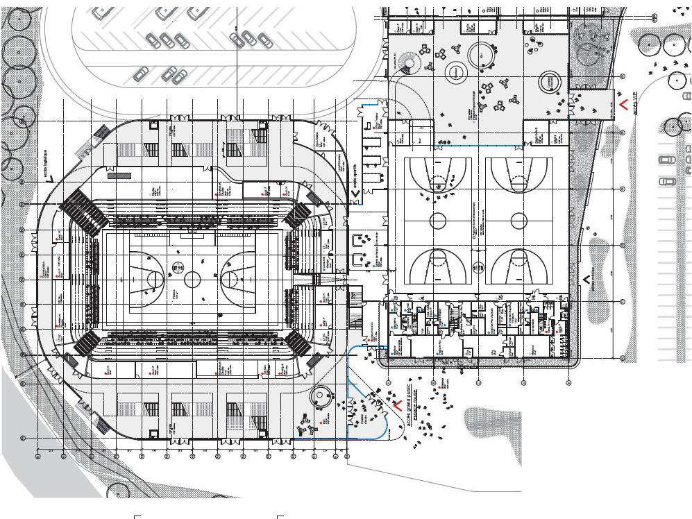
Renovation of the Red Space, the existing Cholet basketball arena, with an extension of the capacity to 5,000 seats and the construction of a new event hall dedicated to trade shows and performances (White Space).
équipe ducks
Missions
Diagnosis of existing conditions / scenographic design (spaces and operations) / design and technical development of stage machinery systems / seats, grandstands, platforms / audiovisual / stage lighting
Visibility study / project coordination and monitoring
Scenography
The City of Cholet plans to renovate the Meilleraie exhibition center, including the renovation of the Cholet Basket sports hall (Red Space) and the construction of a new event hall (White Space).The Espace Rouge renovation project aims to create a new set of fixed grandstand to replace the existing removable grandstand and increase capacity to 5,000 seats. A set of telescopic grandstand at the edge of the court allows the capacity and size of the court to be adjusted. The renovated hall is being upgraded to comply with international basketball regulations. dUCKS scéno was responsible for designing the stands, visibility curves, mounting systems for sound, lighting, and sports displays, as well as all audiovisual and lighting networks for sporting events. The Espace Blanc is a new hall dedicated to trade shows and major events. It can accommodate up to 5,500 people standing. A 30 m x 15 m stage area allows for the installation of a large mobile stage. A technical grid 10 m high, equipped with sliding carriers and rolling bridges, allows for the hanging of equipment and stage sets. The
hall is covered by a network of technical walkways to allow technicians to move around the framework. The hall is equipped with stage networks to ensure great flexibility of use. The project was abandoned in 2023. It will be relaunched in a reduced form in 2024.
Missions
Diagnosis of existing conditions / scenographic design (spaces and operations) / design and technical development of stage machinery systems / seats, grandstands, platforms / audiovisual / stage lighting
Visibility study / project coordination and monitoring