Client
Team
Clément Blanchet Architecture : architects
8’-18‘’ : lighting design
Lamoureux Acoustics : acoustician





Program
Building surface area: 100,000 m²
Studio/control room surface area: approximately 400 m²
Construction budget: €2.8 million
Scenography budget: €0.8 million
Renovation and creation of radio studios/control rooms
équipe ducks
Missions
Scenographic design (spaces and operations)
Project coordination and monitoring
Site monitoring and acceptance
Scenography
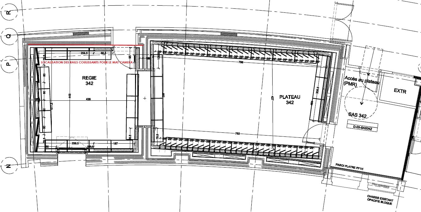
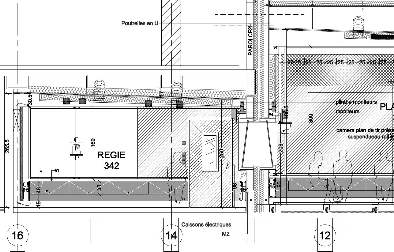
Creation of six “acoustic boxes” converted into six broadcast and recording studios. They are intended for Radio France channels, including France Inter, France Culture, and France Musique.Our mission is to assist the architect with the interior design of the studios and the design of stage equipment for video recording. Four studios are double-height, allowing them to accommodate small musical groups for live recordings. Studio 652 is structured around a set of geometric lines that create a visual anamorphosis, ideal for video recording.Studio 451 is clad in smocked felt panels, a metaphor for radio acoustic envelopment.Studio 351 is a futuristic and technical environment, combining the curves of a cyclorama with the rectilinear rigor of engineering.Studio 542 is enveloped in veils with enigmatic reliefs.Studio 551 embodies a futuristic vessel in immersive geometric lighting.Studio 342 is a luminous temple organized with technical vertical panels made of thin marble slats.These studios offer unique interior designs, harking back to the first studios of the Maison ronde.
Missions
Scenographic design (spaces and operations)
Project coordination and monitoring
Site monitoring and acceptance