Client
Team
dUCKS scéno : scenographer


Program
Scenographic budget: 1.4 M €
Renovation/modernization of the computerized fly system in the Main Auditorium (900 seats) and the Club (250 seats)
équipe ducks
Missions
Analysis, modification, and modernization of stage machinery systems
Replacement of the stage machinery control system
Project coordination and monitoring
Site monitoring and handover
Leader scenographer
Scenography
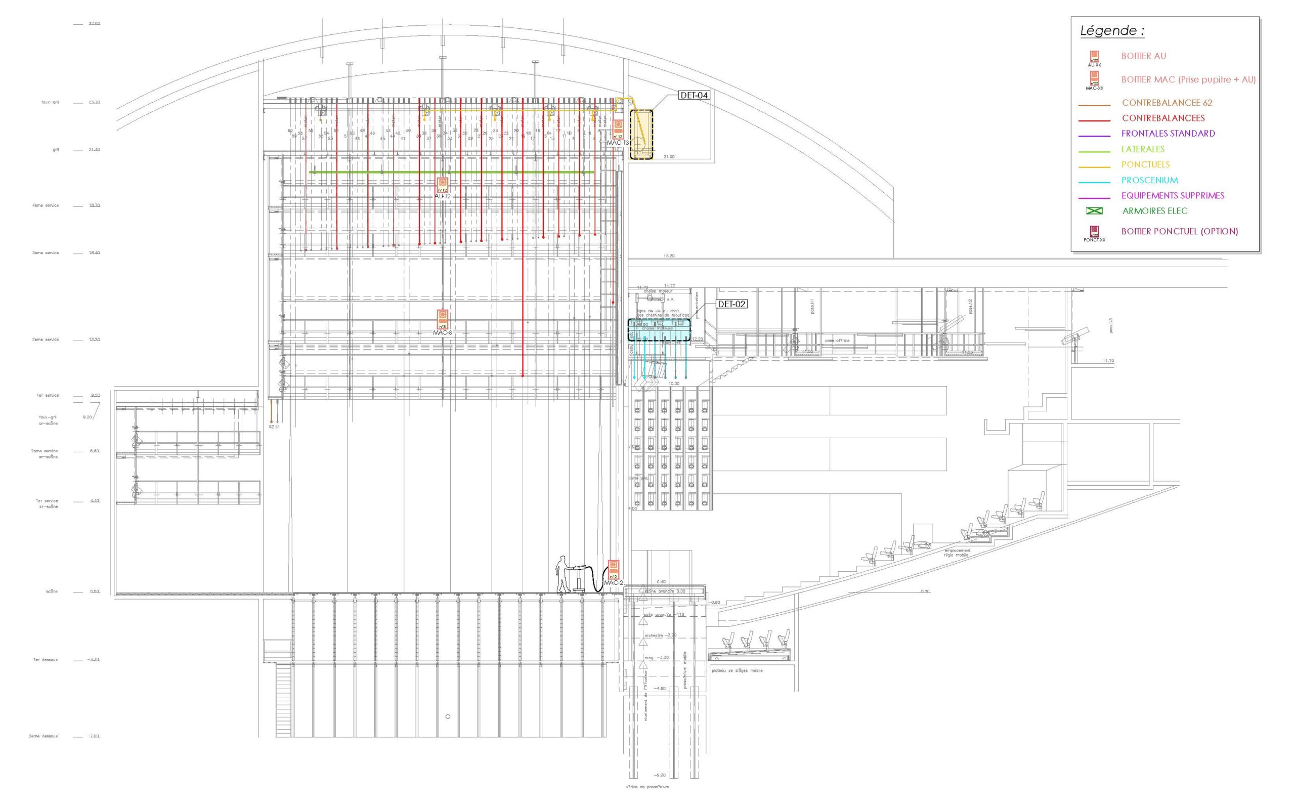
The Théâtre de la Cité, built in 1998 under the name Théâtre National de Toulouse, houses two theater auditoriums with 900 and 250 seats equipped with a combination of manual and computerized stage machinery. After more than 20 years of service, the control systems installed when the theater opened had become obsolete and were experiencing numerous malfunctions. In addition, the lifting machinery required work to bring it into compliance with machine safety standards. dUCKS scéno carried out a feasibility study for the replacement of the control systems and the compliance of the machinery, then designed and supervised the modernization of the carriers and spotlights in the two auditoriums (70 axes in total). Replacing the existing control system with a Trekwerk TNM system made the stage installation more reliable and secure and opened up new possibilities for using this beautiful creative tool. dUCKS scéno supported the theater and the city throughout the entire process, from the initial analysis to user training.
Missions
Analysis, modification, and modernization of stage machinery systems
Replacement of the stage machinery control system
Project coordination and monitoring
Site monitoring and handover
Leader scenographer