Photo credit : Tilt and shoot, 2025
Since 2018, we have been working on renovating this Strasbourg institution alongside Freaks, the LFA agency, Atelier Hervé Audibert, MHIngenierie, Peutz, and Formaboom to assist the University of Strasbourg’s science garden and the city of Strasbourg’s museums in this great adventure.
On September 19, the museum finally reopened its doors, positioning itself at the crossroads of science and society museums.



Between history and modernity, the challenge here is to create an educational and modern museum while preserving the atmosphere and uniqueness of this 19th-century museum, which is deeply rooted in the imagination of several generations.
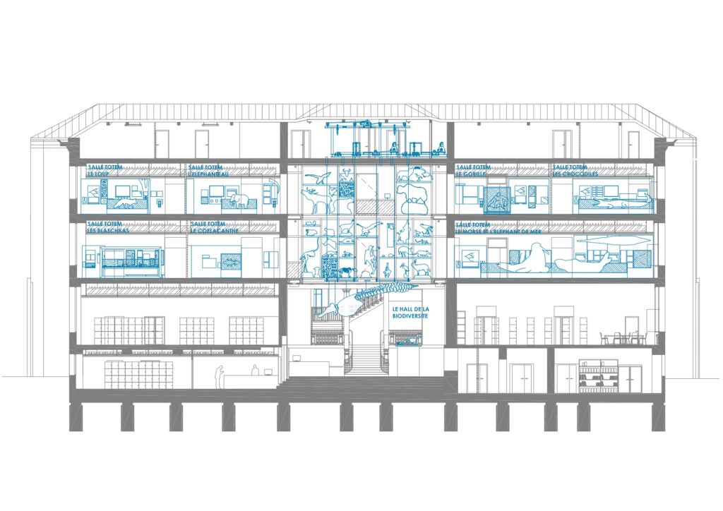
The visitor experience has been completely redesigned to ensure a smooth flow and to help all audiences understand the role of such an institution in contemporary scientific research. Covering approximately 2,000 square meters, it is divided into six major sections, each with its own unique atmosphere and focus:
The visit begins as soon as you enter the museum with the biodiversity hall, made possible by the new triple-height ceiling, which houses a large scaffolding displaying more than 150 specimens representing the biodiversity of the main ecozones. Initially viewed from below by visitors, they will continue to walk around and discover new perspectives throughout their visit.



The tour begins on the second floor, where visitors discover the origins and original purpose of natural history museums in a permanent exhibition. They are immersed in scientific research, the principle of classification, and its history. All this is accompanied by an immersion in the collections with the Hermann display case and the bird display cases, features that were already emblematic of the old museum and have been brought up to date without distorting their original character.
In the second-floor loop, visitors are invited to immerse themselves in a semi-permanent space dedicated to the Rhine and the local ecosystems of Alsace. A large immersive “cyclorama” explains these ecosystems and their inhabitants, accompanied by a large 18-meter-long educational table. A second room focuses on the human footprint on this river and the consequences of human activity on this biotope.



Descending to the first floor, visitors discover a second semi-permanent gallery focusing on Sagami Bay, a site of experimentation and observation linked to the Strasbourg Zoological Museum since the late 19th century. It provides a platform for diving into the oceans and discovering these fragile and multifaceted ecosystems. The scenography and the route take the form of a descent from the beach to the abyss, with two monumental tables on which the mediation and collections are displayed.
A final semi-permanent gallery occupies the east wing of the first floor. It focuses on scientific research into two species that suffer from many stereotypes: bees and mosquitoes. After immersing themselves in a garden, reminiscent of the natural setting and diversity of this ecosystem, visitors enter a laboratory where they are invited to experiment for themselves around a large straw table that summarizes and explains the research of three local laboratories.



On the north facade of the building are seven permanent rooms, each dedicated to the museum’s iconic collections. Visitors learn more about a specimen and its species. Each Totem is presented in the center of the room, surrounded on two walls by immersive wallpaper designed for it, while the remaining walls display themes such as its ethology, geographical distribution, and representations in culture. The wolf, Asian elephant calf, gorilla, Nile crocodile, walrus, and elephant seal share one room, while the African coelacanth and the Blaschkas’ collection of glass models, the museum’s true gems, are displayed in another.