MAÎTRISE D’OUVRAGE
Équipe
Moreau Kusunoki : architecte
LMPolymago : graphiste





Programme
Surface bâtiment : 2 000 m² / surface exposition : 700 m²
Budget travaux : 12 M€ / budget scénographie : 870 K€
Restructuration du bâtiment de la Criée sur le port de Brest / création d’un centre d’interprétation dédié à la conservation et la transmission de l’histoire et du patrimoine des phares et balises / exposition temporaire / exposition permanente /ateliers / accueil
équipe ducks
Missions
Conception scénographique (espaces et fonctionnements) /
Conception de la scénographie des expositions
Conception et développement technique des dispositifs muséographiques / vitrines d’exposition / audiovisuel / multimédia / éclairage muséal / manipulations / soclage
Coordination et suivi de projet
Scénographie
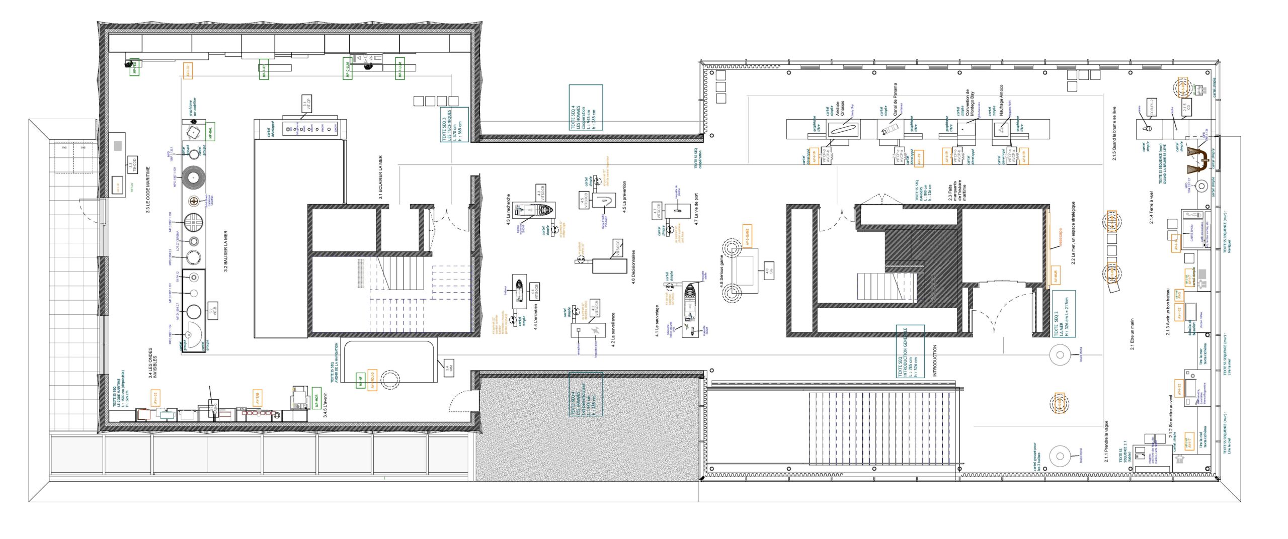
Le centre d’interprétation des phares est localisé sur le 1er Éperon du port de Brest. Projet à l’architecture résolument moderne, il figure un centre d’observation de la navigation maritime, de son patrimoine, ses codes, ses signes et ses métiers. La scénographie est en synergie avec l’architecture.
C’est une rencontre entre discours et espace, entre le dedans et le dehors, entre ombre et lumière, entre les sciences et le domaine du sensible, entre l’observation et la compréhension.
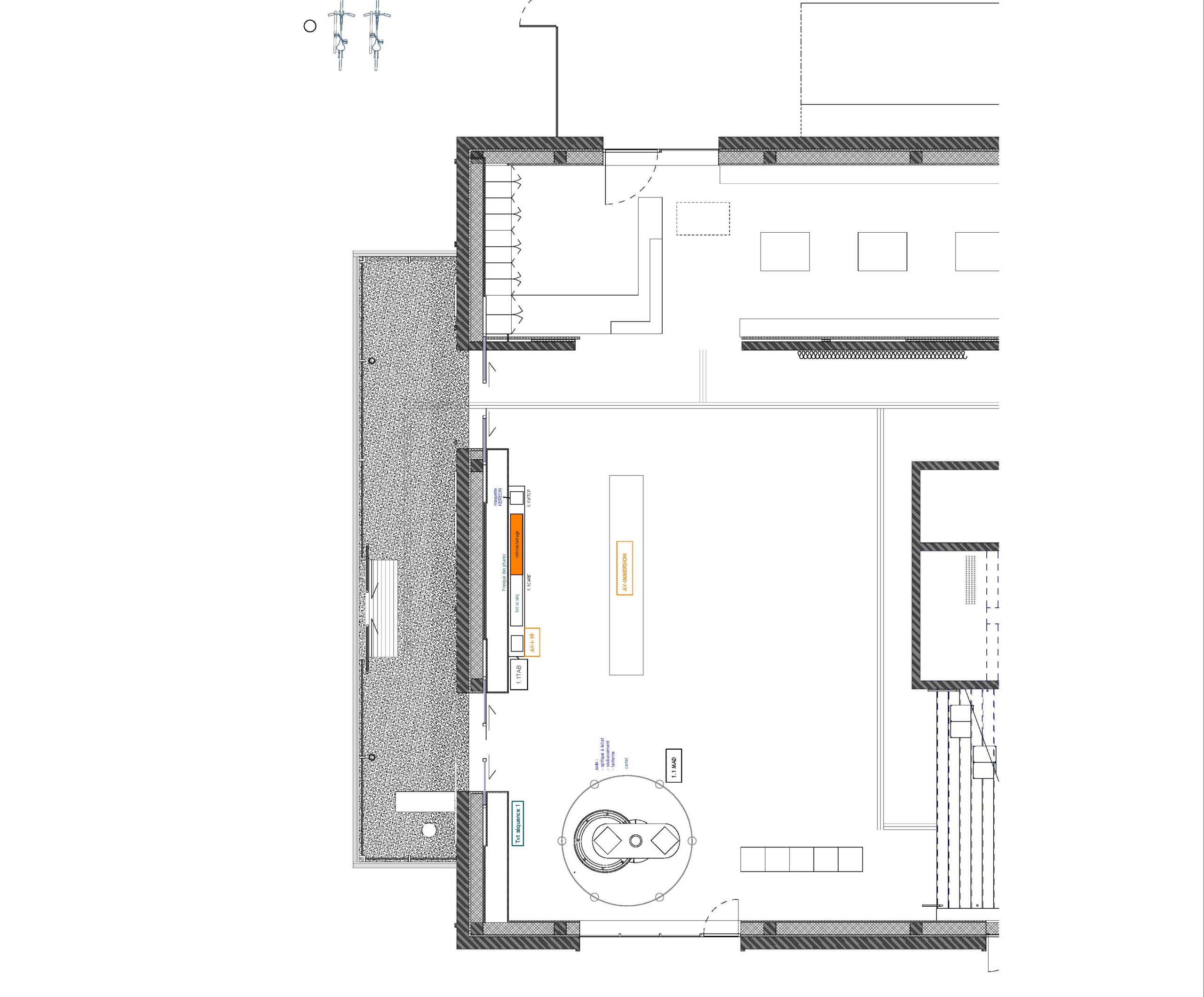
Le préambule de l’exposition «Terre de Phares» débute dès le hall d’accueil. La projection traverse littéralement le hall d’accueil jusqu’à l’espace d’exposition permanente. Cette verticalité rappelle la verticalité du phare et offre cette nécessaire échelle monumentale pour évoquer à la fois son architecture, ses « feux », sa signature mais aussi son environnement et les forces des éléments, plongeant ainsi le visiteur dans l’univers marin. L’exposition permanente prend place à l’étage face à la mer. La ligne bleue, support du discours et de la scénographie se déroule tout le long des 3 séquences : la mer, les hommes et les techniques offrant ainsi à la fois des expériences uniques et un continuum.
C’est un lieu pour tous les publics, qui invite à la découverte et au voyage.
Missions
Conception scénographique (espaces et fonctionnements) /
Conception de la scénographie des expositions
Conception et développement technique des dispositifs muséographiques / vitrines d’exposition / audiovisuel / multimédia / éclairage muséal / manipulations / soclage
Coordination et suivi de projet