MAÎTRISE D’OUVRAGE
Équipe
Renzo Piano : architecte
Anamnesia : mandataire
Huettinger : manipulations
Nussli : constructeur







Programme
Surface exposition : 600 m²
Budget scénographie : 1.5 M€
Conception-réalisation de l’exposition « Discover Cern » dans le nouveau bâtiment de Renzo Piano Science Gateway.
équipe ducks
Missions
Conception scénographique / conception de la scénographie des expositions
Conception et développement technique des dispositifs muséographiques / vitrines d’exposition / éclairage muséal / intégration des manipulations
Coordination et suivi de projet / suivi de chantier et réception
Scénographie
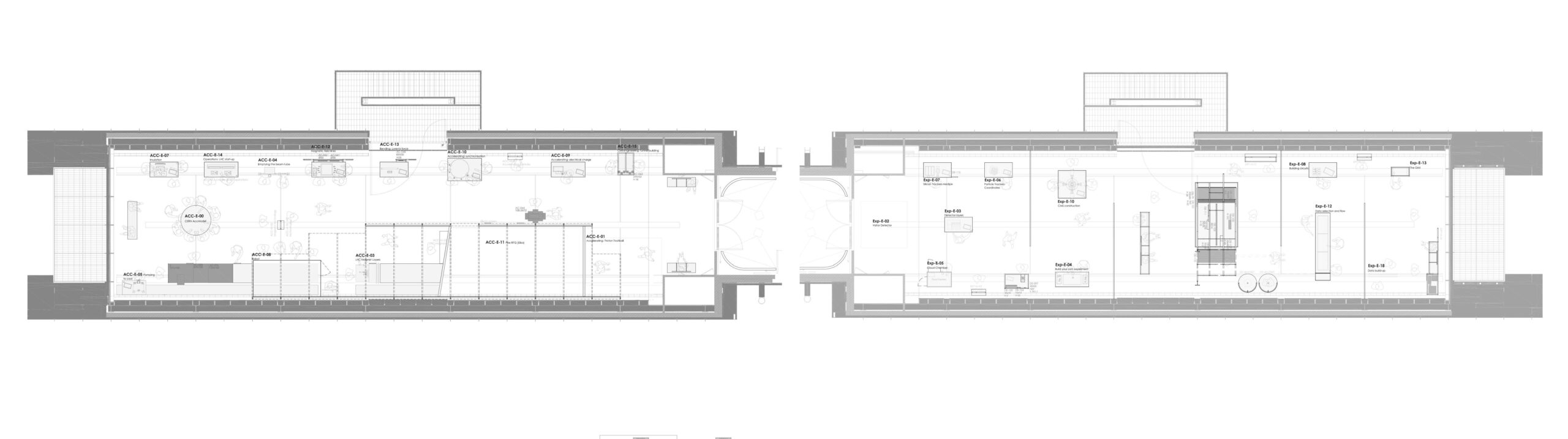
Cette exposition offre une immersion au coeur du CERN, et de l’accélérateur de particules. L’espace « Accélérer » est consacré aux principes d’accélération et aux forces nécessaires (magnétiques, refroidissement, isolation, etc).
Le tunnel créé par l’architecture est un préalable à la scénographie, il offre déjà une certaine idée de l’immersion, il conduit et façonne la conception, la distribution et le parcours du visiteur. Une reconstitution à l’échelle 1 d’une partie du LHC trace un linéaire continu d’exploration dans l’espace. Toutes les expositions sont organisées en dialogue avec cette ligne et le tunnel. Le LHC est une entité animée autour de laquelle fourmillent public, médiation, objets, collections et animations.
L’espace «Collision» présente les détecteurs : le grand collisionneur de hadrons, la détection de particules élémentaires et la façon de traiter les données reçues.
De larges panneaux graphiques transparents retranscrivent les couches du collisionneur à l’échelle du tunnel à l’image de vitraux contemporains.
L’exposition se compose majoritairement de manipulations et de dispositifs immersifs afin de rendre les découvertes, les recherches scientifiques et les technologies du CERN accessibles et ludiques à tous les publics.
Missions
Conception scénographique / conception de la scénographie des expositions
Conception et développement technique des dispositifs muséographiques / vitrines d’exposition / éclairage muséal / intégration des manipulations
Coordination et suivi de projet / suivi de chantier et réception