MAÎTRISE D’OUVRAGE
Équipe
Atelier Marc Barani – GMAA : architecte
Les Éclaireurs : conception lumière
Cartel Collection : expertise conservation
Agent M : designer, graphiste
Dieter Buchhart : commissaire de l’exposition inaugurale
Métalobil : réalisation Billboard
Ellipse Bois : agenceur
Récompenses
Prix de l’ACEtylène 2018, catégorie « Prix de la Conception Lumière Intérieure »









Programme
Surface exposition : 2 000 m²
Construction Fondation d’Art Contemporain au sein du parc national de Port-Cros sur l’île de Porquerolles
équipe ducks
Missions
Conception scénographique (espaces et fonctionnements)
Conception de la scénographie de l’exposition inaugurale / Billboard « Sea of Desire » / conception et développement technique des dispositifs scénographiques / éclairage muséal / conservation préventive / installations artistiques permanentes / coordination et suivi de projet / suivi de chantier et réception
Scénographie
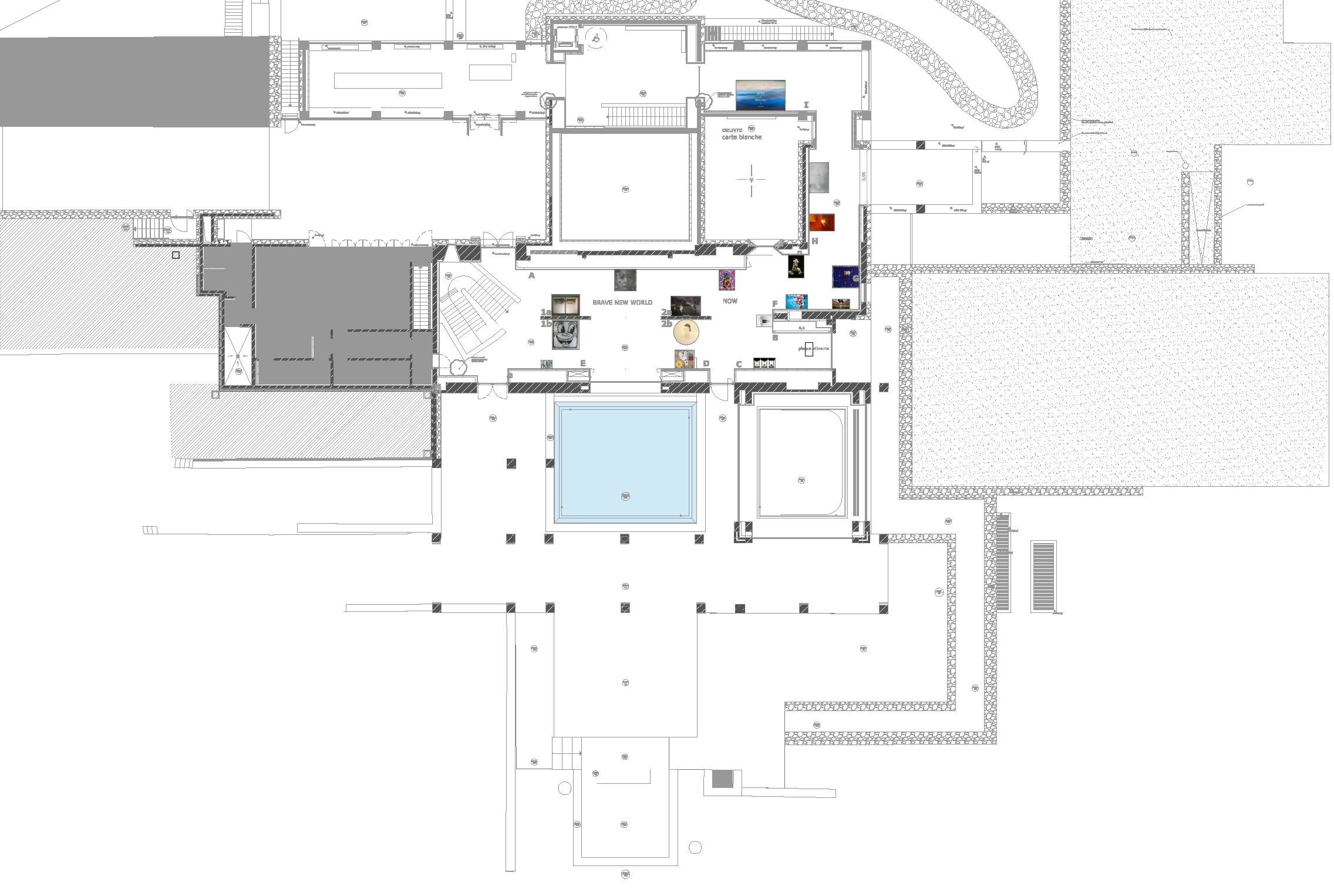
La Villa Carmignac est une rencontre entre l’art, la nature, [l’eau], la lumière et l’architecture. « Implanter un musée et un parc de sculptures sur une île aussi protégée relève à la fois du défi et du rêve.» Dès l’entrée, le visiteur plonge dans l’exposition et la collection. L’escalier conduit sous la surface, où le Ciclotrama de Janaina Mello Landini offre une expérience physique unique. Après la salle d’introduction, 100’ Fish Fountain de Bruce Nauman, génère un prélude sensoriel avec une température fraîche, une lumière brillante et le son apaisant de l’eau. La déambulation continue, l’espace souterrain se présente comme une suite de salles d’exposition dont les espaces fluides sont découpés par des cimaises (modulables et démontables), qui organisent et articulent le volume sans le cloisonner. Une trame d’inserts au sol offre la possibilité d’installer différentes configurations de cimaises selon les besoins des expositions. Le plafond d’eau au centre laisse entrer la lumière naturelle, créant un véritable «coeur scénographique». L’eau et la lumière sont des éléments scénographiques, structurant le parcours. La salle permanente Barcelo, avec ses cimaises arrondies, épouse la toile panoramique de 16 mètres et amplifie l’impression d’immersion dans cet univers marin. Les extrémités des galeries sont équipées de plafonds lumineux mimant l’éclairage naturel. L’approche scénographique est discrète, technique, s’insérant subrepticement dans l’architecture pour accompagner les oeuvres à travers la lumière et les espaces.
Missions
Conception scénographique (espaces et fonctionnements)
Conception de la scénographie de l’exposition inaugurale / Billboard « Sea of Desire » / conception et développement technique des dispositifs scénographiques / éclairage muséal / conservation préventive / installations artistiques permanentes / coordination et suivi de projet / suivi de chantier et réception