MAÎTRISE D’OUVRAGE
Équipe
Henning Larsen Architects : architectes, conception lumière
Nagata Acoustics : acousticiens
Buro Happold Engineering : bureau d’étude technique





Programme
Surface bâtiment : 28 500 m²
Jauge Lyric theater : 1 572 pl. / Mid-scale theater : 705 pl.
Rehearsal hall : 183 pl.
Ouverture cadre Lyric : 18 m / profondeur scène Lyric : 15.6 m
Ouverture cadre Mid-scale : 12 m / profondeur scène
Mid-scale : 11.8 m
Budget travaux : confidentiel / budget scéno : 34.8 M€ (estimation)
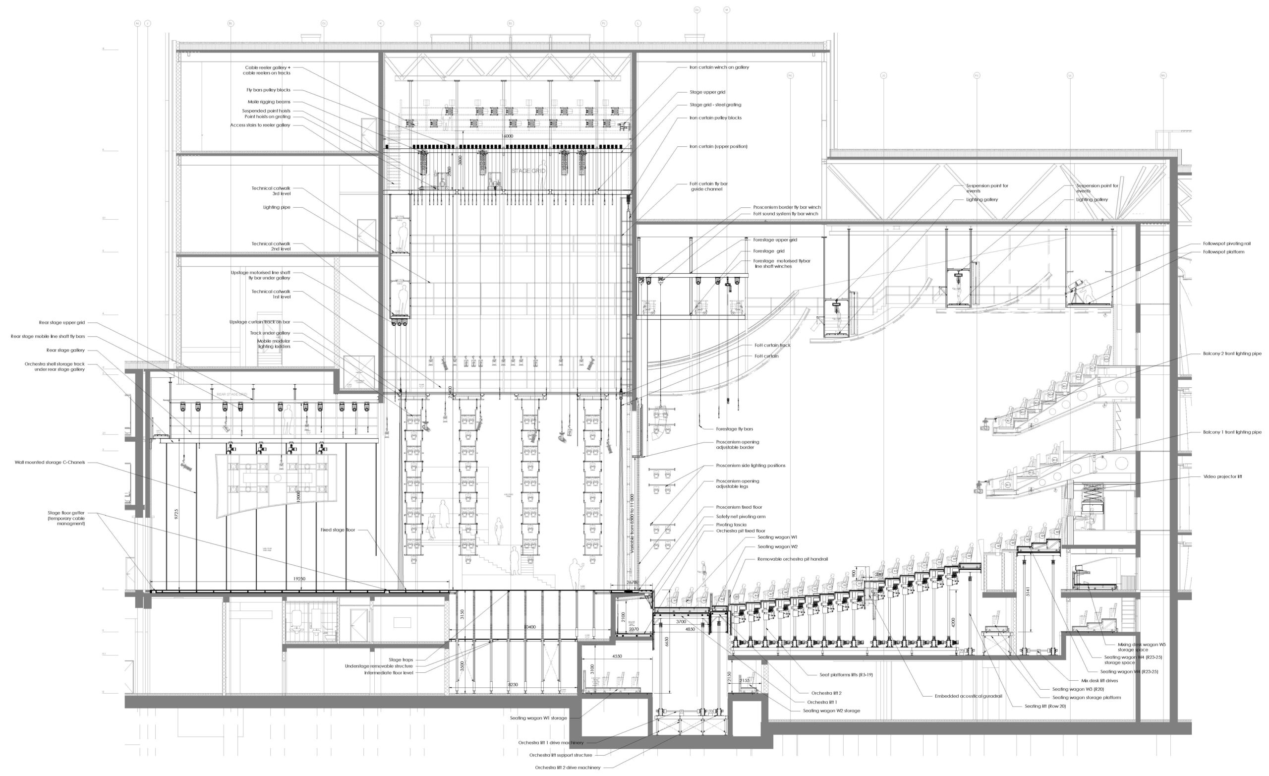
Construction d’un bâtiment intégrant 3 salles de spectacles :
Lyric Theater de 1500 pl., Mid-scale Theater de 700 pl., Rehearsal Hall de 180 pl. Salles transformables permettant d’escamoter les fauteuils pour évènements à plat. Espaces logistiques et de support, loges et quartier des artistes.
équipe ducks
Missions
Conception scénographique (espaces et fonctionnements)
Conception et développement technique des systèmes de machinerie scénique / fauteuils, tribunes, plateformes
Sonorisation / vidéo / éclairage scénique / acoustique variable / étude de visibilité / coordination et suivi de projet
Modélisation BIM
Scénographie
Dans le cadre du « Jeddah Central Project », le futur Opera de Jeddah est un des marqueurs fort du vaste plan de réaménagement urbain du front de mer, qui a pour objectif le développement touristique de la 2ème grande ville du royaume, porte d’entrée vers La Mecque.
Le bâtiment intègre 3 salles de spectacles dédiées au théâtre, à l’opéra, à la musique et à la danse : un grand théâtre de 1500 places, un théâtre medium de 700 places et une salle de répétition pouvant accueillir 180 spectateurs.
Les salles de théâtre sont équipées de parterres de fauteuils transformables automatiquement permettant de créer des vastes espaces scène salle de plain-pied pour des évènements variés (mariages, dîners, cérémonies…) en quelques heures seulement.
dUCKS a piloté la conception des 3 salles, des scènes et des espaces du backstage (fonctionnement, études de visibilité 3d, gestion logistique…) et assuré la conception de tous les systèmes scéniques, notamment la machinerie de transformation des salles, la machinerie informatisée des cages de scène , ainsi que les réseaux scéniques permettant le contrôle de l’éclairage, du son et de la vidéo en utilisant les protocoles numériques les plus récents.
Missions
Conception scénographique (espaces et fonctionnements)
Conception et développement technique des systèmes de machinerie scénique / fauteuils, tribunes, plateformes
Sonorisation / vidéo / éclairage scénique / acoustique variable / étude de visibilité / coordination et suivi de projet
Modélisation BIM