MAÎTRISE D’OUVRAGE
Équipe
Atelier King Kong : architecte
Kahle Acoustics : acousticien
OTE : BET TCE
A+R paysages : paysagiste





Programme
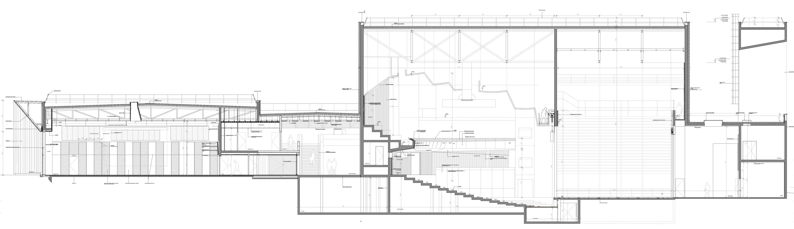
Surface bâtiment : 5 300 m² / Grand Théâtre : 800 pl. Espace 500 : 554 m² / espace 200 + cocktail : 402 m²
Ouverture cadre : 19.2 m / profondeur scène : 13.2 m
Hauteur scène : 16.3 m
Budget travaux : 13.6 M€ / budget scéno : 1.46 M€
Réhabilitation et extension du théâtre et des espaces polyvalents / loges et backstage / logistiques
équipe ducks
Missions
Conception scénographique (espaces et fonctionnements)
Conception et développement technique des systèmes de machinerie / fauteuils / audiovisuel / éclairage scénique Étude de visibilité
Coordination et suivi de projet
Suivi de chantier et réception (en cours)
Scénographie
La Nouvelle Fleuriaye de Carquefou mêle intimement son bâti historique renouvelé avec des extensions plus contemporaines. L’édifice ainsi recomposé marque un signal urbain puissant, qui se donne à voir et bien plus encore ! Il invite à dévoiler son intérieur, révélant de nouveaux espaces modernisés et plus lisibles pour son public. Une démarche scénographique collaborative et impliquée avec les utilisateurs a permis d’améliorer l’accueil des publics et les conditions de travail des équipes. Grâce à une réorganisation spatiale du hall et des bureaux, mais aussi par le biais d’une refonte du backstage artistique et de la logistique scénique, la Nouvelle Fleuriaye profite de nouvelles opportunités fonctionnelles et surtout culturelles.
Le Grand Théâtre, avec son balcon et ses dimensions remarquables, fait peau neuve. Le remplacement des fauteuils est l’occasion d’un travail de réimplantation et de mise aux normes. La fluidité des circulations, l’épure des visibilités et le rapport scène/salle immersif s’en trouvent améliorés. L’espace scénique profite d’un lifting et se dote d’un nouveau parquet pourvu de trappillons. Les espaces polyvalents profitent quant à eux d’un agrandissement et d’une modernisation de leurs capacités scéniques. Des accroches complémentaires et des réseaux scéniques répondent aux exigences et protocoles les plus récents.
Missions
Conception scénographique (espaces et fonctionnements)
Conception et développement technique des systèmes de machinerie / fauteuils / audiovisuel / éclairage scénique Étude de visibilité
Coordination et suivi de projet
Suivi de chantier et réception (en cours)