MAÎTRISE D’OUVRAGE
Équipe
Hervé Beaudouin – Benoît Engel : architecte
2.26 : graphiste





Programme
Surface bâtiment : 3 500 m² / surface exposition : 380 m²
Budget travaux : 12 M€ / budget scéno : 410 K€
Construction d’un pôle culturel / musée de la Préhistoire / médiathèque / MJC / espaces d’exposition permanentes et temporaires / ateliers pédagogiques / espaces administratifs
équipe ducks
Missions
Conception scénographique (espaces et fonctionnements)
Conception de la scénographie de l’exposition permanente
Conception et développement technique des systèmes audiovisuels et multimédia / éclairage muséal / manipulations / dispositifs muséographiques / vitrines d’exposition / soclage
Conception du graphisme / des productions des médiations numériques
Coordination et suivi de projet / suivi de chantier et réception
Scénographie
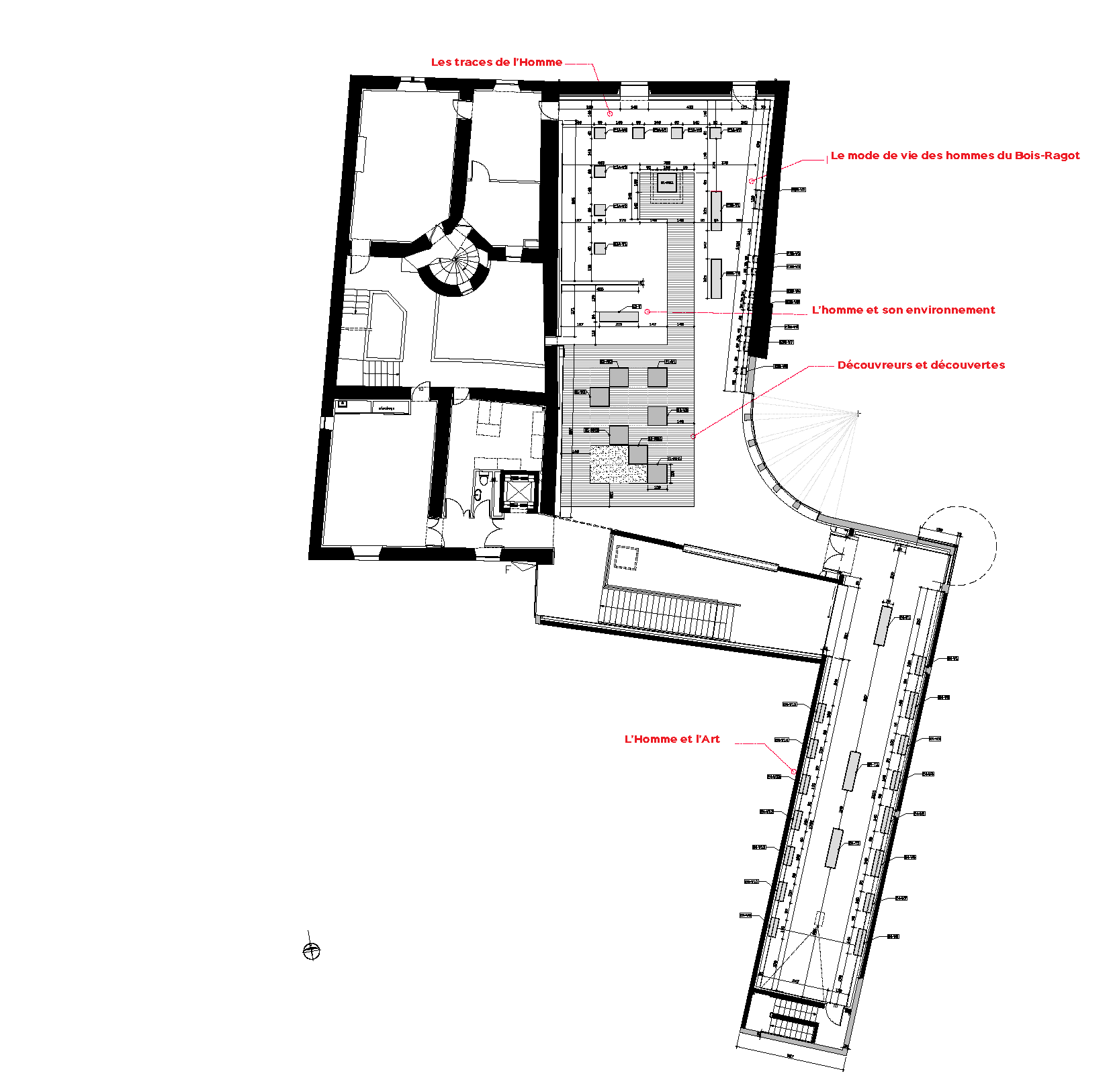
Le musée abrite des collections archéologiques du Paléolithique moyen et supérieur, tels que des restes de faunes, des outils en silex, des objets en os et en bois, des éléments de parure et des oeuvres d’art gravées. Une collection exceptionnelle de pierres gravées, notamment de la grotte de La Marche, datant d’environ 14000 ans, est mise en avant. Le musée, spacieux et lumineux, offre une expérience interactive et attractive. L’exposition permanente met en valeur les découvertes locales de manière scientifique et ludique. Les mobiliers, tels que vitrines cloches et totems, présentent les collections, tandis que les éléments interactifs comme les manipulations d’objets expérimentaux et des audiovisuels complètent le parcours. La visite se déroule à travers quatre espaces, offrant une approche chronologique et thématique de la préhistoire locale. Le premier espace est consacré aux « découvreurs et découvertes » et traite des sites et méthodes de fouille, le second « l’homme et son environnement » (climat, faune, flore au Paléolithique), l’espace « les traces de l’Homme » présente les collections des sites lussacois et le « mode de vie des hommes du Bois-Ragot», enfin la galerie « l’Homme et l’Art » est consacrée spécifiquement à l’art du Paléolithique au lussacois à travers principalement l’exemple des gravures sur pierre.
Les visiteurs peuvent partir découvrir les grottes, site préhistorique proche, à travers un parcours extérieur avec des totems explicatifs.
Missions
Conception scénographique (espaces et fonctionnements)
Conception de la scénographie de l’exposition permanente
Conception et développement technique des systèmes audiovisuels et multimédia / éclairage muséal / manipulations / dispositifs muséographiques / vitrines d’exposition / soclage
Conception du graphisme / des productions des médiations numériques
Coordination et suivi de projet / suivi de chantier et réception