MAÎTRISE D’OUVRAGE
Équipe
Chartier+Corbasson : architecte
LM Polymago : graphiste



Programme
Surface bâtiment : 1 600 m² / surface exposition : 500 m²
Budget travaux : 7 M€ / budget scéno : 1.6 M€
Rénovation et extension du musée / nouveaux espaces d’exposition permanents et temporaires / nouveau parcours de visite / nouvel accueil
équipe ducks
Missions
Conception de la scénographie des expositions gothique et archéologiques / audiovisuel / éclairage muséal / manipulations / dispositifs muséographiques / vitrines d’exposition / soclage / conception des productions des médiations numériques / scénographie digitale /
Coordination et suivi de projet
Scénographie
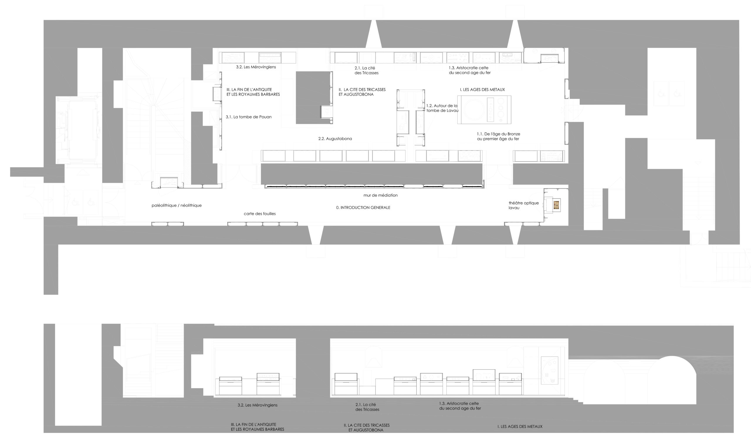
Une ligne guide naturellement le visiteur dans sa déambulation. Elle forme le parcours, se plie et se déplie en cimaises supports d’oeuvres, de chef d’oeuvres et du discours et alternent avec des espaces de « mises en scènes » où les collections sont exposées tels des paysages ou natures mortes. Les jalons séquences introduisent chaque étape chronologique et thématique, avec des outils de médiation tels que textes d’introduction, repérages graphiques, illustrations, projections et multimédia. Ces éléments ouvrent le discours sur le territoire historique et actuel, en connectant le visiteur à la collection. La ligne permet une lecture augmentée liant discours, histoire, espace et collections. L’enjeu principal est de valoriser les collections en faisant sens, révélant les fragments lapidaires comme des oeuvres significatives. Certains fragments, bien que partiels, conservent leur puissance évocatrice, laissant place à l’interprétation du visiteur. L’exposition «Un voyage au coeur du Moyen Âge» occupe un vaste espace ouvert et réaménagé. Le parcours est articulé en cinq séquences, évoquant Troyes du XIe au XVe siècle, de la capitale du comté de Champagne à l’essor de l’art précieux. Pour les collections archéologiques, l’exposition permanente au R-1 présente un panorama de l’Aube, des temps préhistoriques aux royaumes mérovingiens. Le parcours est scandé en 4 séquences. La galerie d’entrée rassemble la majorité des dispositifs de médiation et offre les clés de compréhension du parcours. La grande salle est spécifiquement dédiée à la mise en valeur des collections et en particulier au « trésor » de la tombe princière de Lavau.
Missions
Conception de la scénographie des expositions gothique et archéologiques / audiovisuel / éclairage muséal / manipulations / dispositifs muséographiques / vitrines d’exposition / soclage / conception des productions des médiations numériques / scénographie digitale /
Coordination et suivi de projet