MAÎTRISE D’OUVRAGE
Équipe
Rudy Ricciotti : architecte mandataire
NDA Agence : architecte du patrimoine
Renaud Piérard : scénographe associé
8’18 : éclairagiste
ABMuséo : muséographe
Thomas Jankowski : graphisme d’exposition
Mosquito : designer interactif




Programme
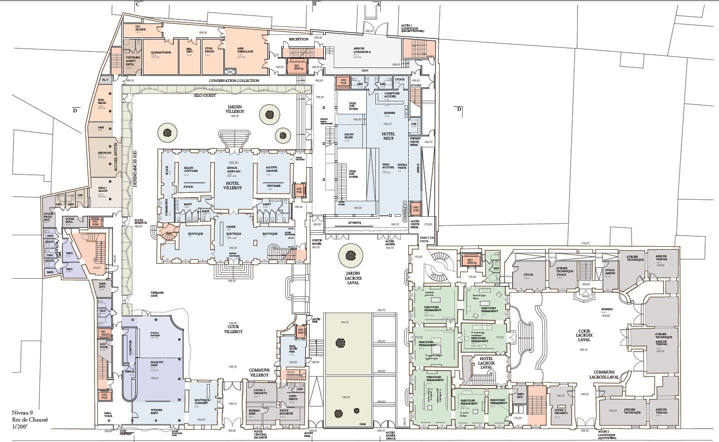
Surface bâtiment : 6 900 m² / parcours collections : 2 000 m²
Budget travaux : 30 M€ / budget scéno : 4.9 M€
Restructuration et extension du Musée des Tissus / accueil / parcours permanent / expositions temporaires / auditorium 150 pl. / ateliers / espaces de manifestation culturelle / espaces administratifs / logistique / bâtiment historique
équipe ducks
Missions
Conception et maîtrise d’oeuvre de la scénographie muséale en association avec R. Piérard / conception du parcours permanent / agencement et design des dispositifs muséographiques, mobiliers d’exposition et vitrines / ingénierie dispositifs, systèmes audiovisuels et interactifs / suivi et direction artistique des médiations / scénographie de l’auditorium et des espaces d’expositions & des espaces de réception.
Scénographie
Créer un musée référence de renommée mondiale, qui mette en valeur ses collections de manière innovante tout en s’adaptant aux contraintes de l’hôtel Lacroix-Laval. Permettre la rotation aisée des collections pour des raisons de conservation préventive. Le parcours des collections débute au rez-de-chaussée de l’Hôtel-Neuf et se développe sur les trois niveaux de l’Hôtel Lacroix-Laval. Les parcours privilégient les façades intérieures et valorisent les perspectives créées par les ouvertures existantes. Les vues extérieures depuis les espaces muséographiques sont maintenues mais partiellement filtrées pour respecter les règles de conservation. L’adéquation du programme des collections et la distribution des espaces du bâtiment inscrit nécessitent des dispositifs scénographiques innovants et une optimisation de l’accrochage. Le musée présente diverses oeuvres, notamment des tissus montés sur châssis, des costumes, des meubles et des objets variés. Plutôt que d’adopter un accrochage traditionnel, le projet propose un accrochage «patchwork» dynamique qui mêle différentes typologies d’oeuvres et encourage les comparaisons et les superpositions, en investissant principalement les parois périphériques des salles et de larges volumes vitrés.
Missions
Conception et maîtrise d’oeuvre de la scénographie muséale en association avec R. Piérard / conception du parcours permanent / agencement et design des dispositifs muséographiques, mobiliers d’exposition et vitrines / ingénierie dispositifs, systèmes audiovisuels et interactifs / suivi et direction artistique des médiations / scénographie de l’auditorium et des espaces d’expositions & des espaces de réception.