MAÎTRISE D’OUVRAGE
Équipe
dUCKS scéno : scénographe mandataire
Mosquito : designer interactif
LUMIDECO : agencement et mobilier
VIDELIO : équipements audiovisuels
ANIMAVIVA : réalisation audiovisuelle et multimédia








Programme
Surface : 1 500 m² / surface exposition permanente : 900 m²
Budget scénographie : 0.52 M€
Renouvellement des médiations numériques du musée Lalique / équipements audiovisuels / création de nouveaux médias / visioguide / création mobiliers et vitrines
équipe ducks
Missions
Étude de faisabilité et de programmation
Conception de la scénographie des expositions / conception et développement technique audiovisuel / multimédia / dispositifs muséographiques / vitrines d’exposition
Conception du graphisme / des productions des médiations numériques / scénographie digitale / coordination et suivi de projet / suivi de chantier et réception
Scénographie
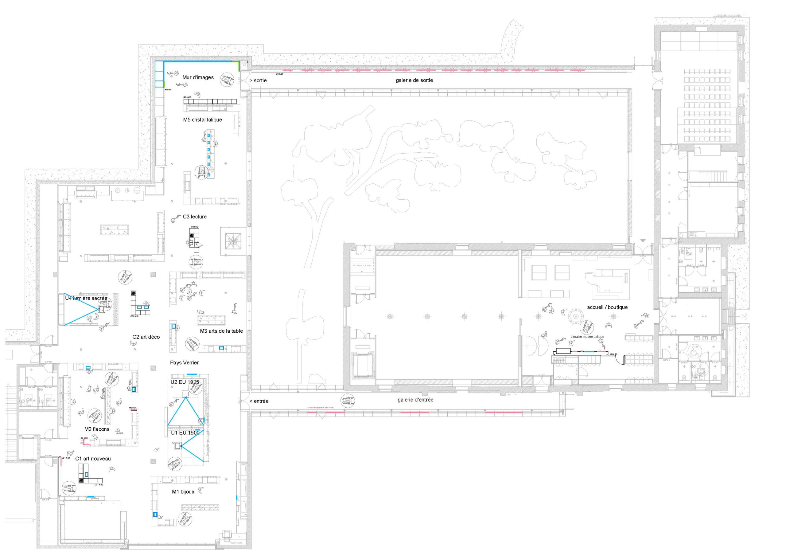
L’exposition permanente présente l’ensemble de l’oeuvre de René Lalique, des bijoux, dessins, flacons de parfums, Arts de la Table, créations verrières, puis jusqu’à la création Lalique contemporaine. Après 10 ans de fonctionnement, les outils média de l’exposition permanente (bornes interactives, le grand mur de la Manufacture, visioguide) sont réinventés dans le cadre d’une réflexion globale sur l’expérience de visite. Les galeries d’entrée et de sortie sont utilisées dans le prolongement de l’exposition pour présenter à l’entrée
une lecture du paysage et les ressources nécessaires pour fabriquer du verre et à la sortie, une rencontre avec les verriers contemporains. Une grande carte animée présente l’histoire des verriers à travers l’Antiquité, puis le Moyen-Age, avec un zoom sur le Pays verrier des Vosges du Nord.
De nouvelles tables de consultation dans les espaces « carrefours » offrent une navigation à travers l’Art Nouveau et les courants historiques, artistiques qui ont influencé René Lalique. Le contenu est diffusé en simultané sur grand écran offrant ainsi une vision élargie pour le public. Le grand mur d’images « la Manufacture » (27 écrans de 46’) présente les savoir-faire d’une manière esthétique et contemplative.
Les explications plus didactiques sur les métiers sont développées dans la galerie de Sortie. De nouveaux mobiliers d’assise et de consultation ont également été ajoutés en harmonie avec l’exposition permanente existante créée par ducks scéno.
Missions
Étude de faisabilité et de programmation
Conception de la scénographie des expositions / conception et développement technique audiovisuel / multimédia / dispositifs muséographiques / vitrines d’exposition
Conception du graphisme / des productions des médiations numériques / scénographie digitale / coordination et suivi de projet / suivi de chantier et réception