MAÎTRISE D’OUVRAGE
Équipe
Encore Heureux – Vincent Pareira – AAVP : architecte






Programme
Surface bâtiment : 1 278 m²
Surface d’expositions : 350 m²
Budget travaux : 2.8 M€
Le musée regroupe au sein de l’ancienne gare de Suresnes une exposition permanente de 350 m² portant sur le projet urbain et social du XXe siècle de la ville de Suresnes, une salle d’exposition temporaire et des salles pédagogiques.
équipe ducks
Missions
Conception du parcours et maîtrise d’oeuvre de la scénographie de l’exposition permanente pour l’éclairage, le soclage, les manipulations, les équipements audiovisuels et multimédia.
Scénographie
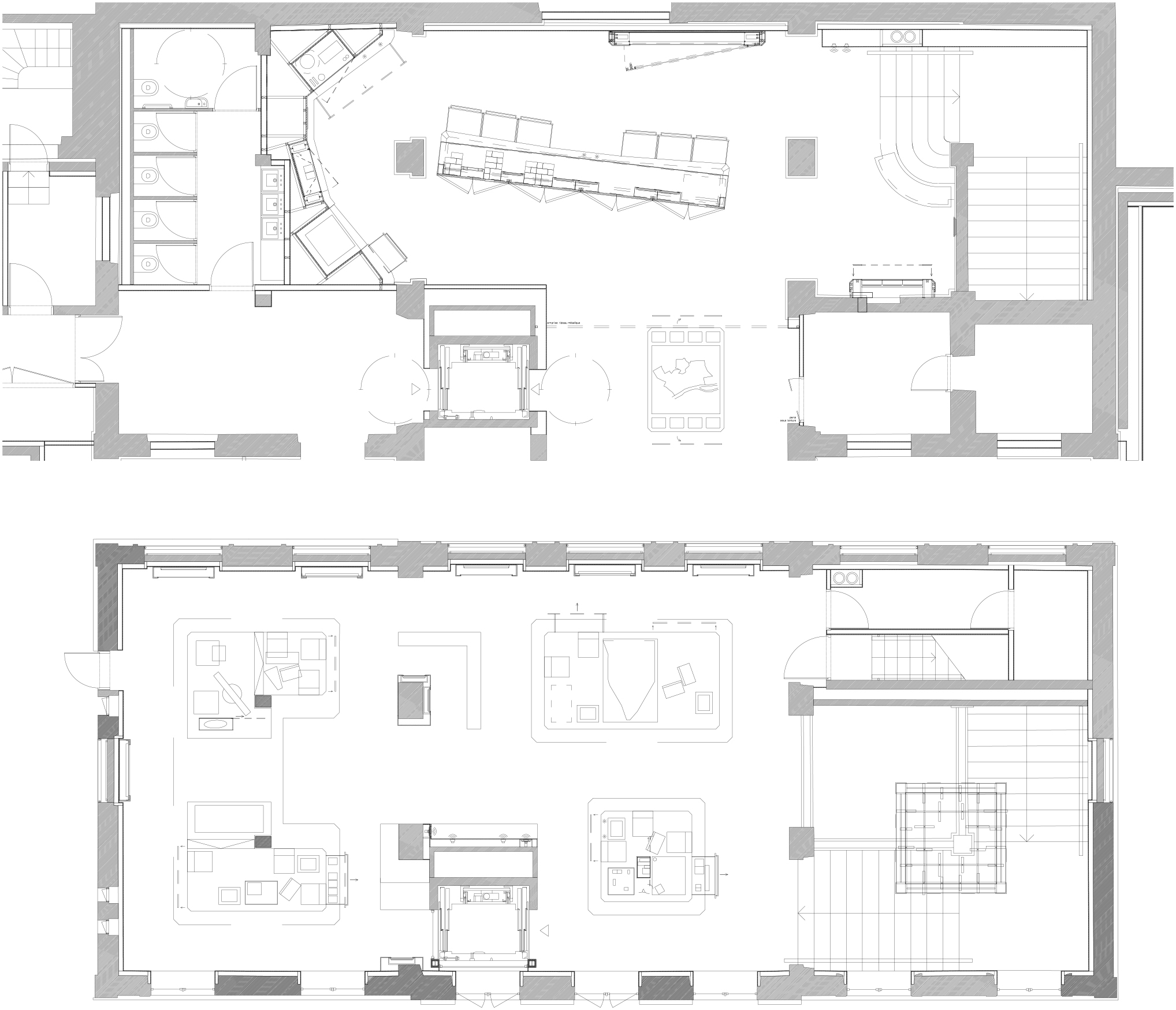
Installée sur deux niveaux dans l’enceinte de l’ancienne gare, l’exposition permanente balaie, en sept séquences, l’histoire de Suresnes en présentant des objets originaux et des documents iconographiques rares.
Le parcours muséographique fait appel à tous les sens et s’appuie sur les technologies nouvelles pour proposer, à partir d’exemples concrets et de repères chronologiques, des présentations interactives de la transformation de la ville au fil des siècles. Dès l’entrée, les images des évolutions de la ville sont projetées sur une maquette topographique. Plus loin, une borne olfactive appuie l’évocation des activités de parfumerie, un film retrace l‘histoire urbaine, des bornes (à écran) tactiles naviguent dans les étapes d’aménagement des cités-jardins, etc. Au rez-de-chaussée, ce sont des vitrines qui présentent le village viticole et la ville industrielle. Empruntant l’escalier monumental où il croise, suspendues en mobile géant, 50 portraits d’habitants emblématiques des mutations de la ville, le visiteur découvre un dispositif muséographique différent. Surplombées d’un chapeau en tissu qui resserre l’attention et abrite les dispositifs d’éclairage et de projections, quatre tables abordent la thématique centrale du MUS : le projet urbain et social conçu et mis en oeuvre par Henri Sellier durant l’entre-deux-guerres dans le département de la Seine.
Missions
Conception du parcours et maîtrise d’oeuvre de la scénographie de l’exposition permanente pour l’éclairage, le soclage, les manipulations, les équipements audiovisuels et multimédia.