MAÎTRISE D’OUVRAGE
Équipe
Atelier FGA : architecte
IDB Acoustique : acousticien
YAO : éclairagiste
Trouillot & Hermel : paysagiste





Programme
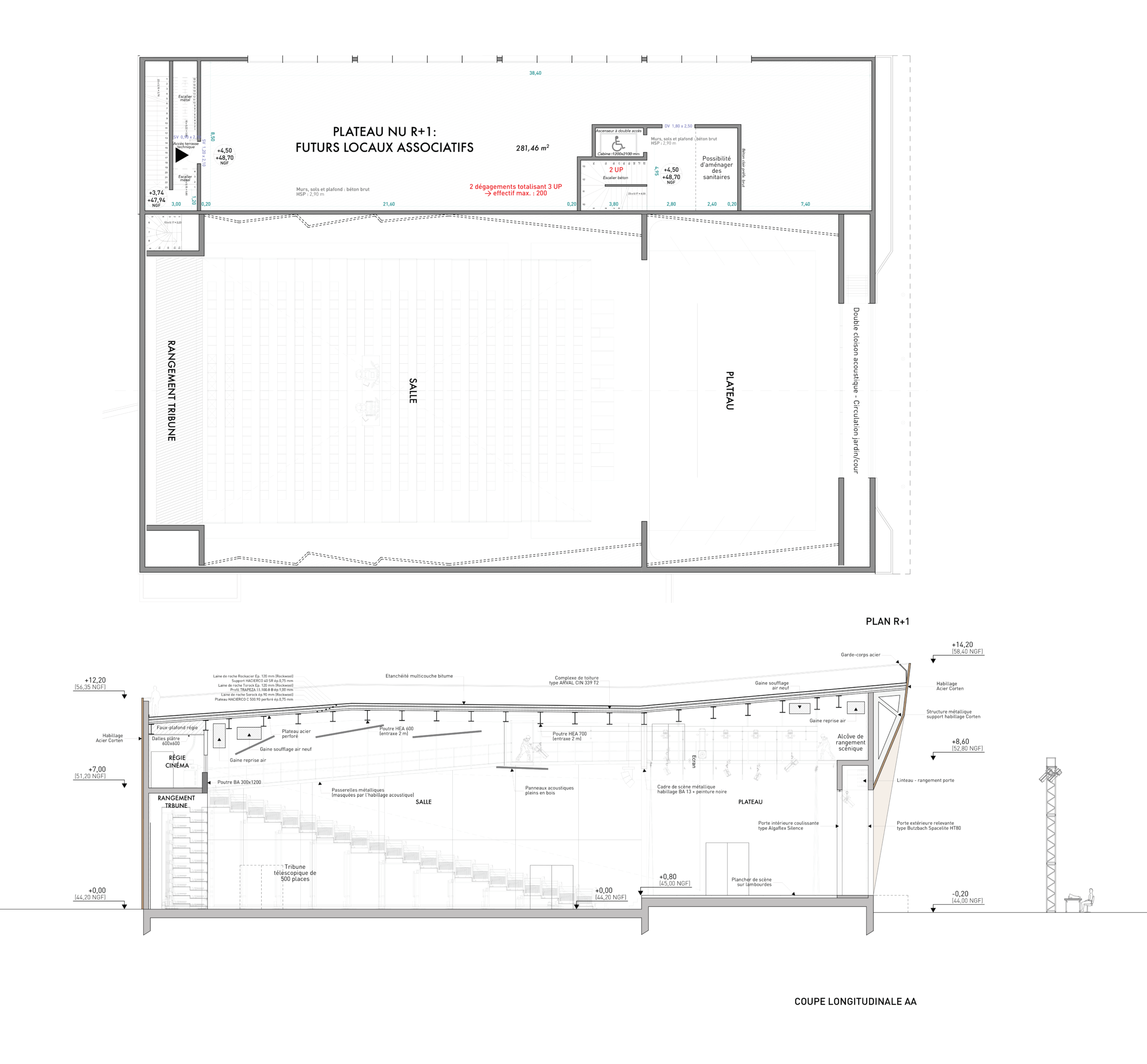
Surface bâtiment : 1 950 m² / jauge : 504 à 1 000 places
Ouverture Cadre : 15 m / profondeur scène : 11.2 m Hauteur sous gril : 9 m
Budget travaux : 4.33 M€ / budget scéno : 810 000 €
Création d’une salle de spectacle modulable / loges et backstage / logistique / accueil convivialité / administration
équipe ducks
Kevin L., Aldo, Antoine, Clémentine, Cyril, Hanna, Kevin M., Rachel, Willy
Missions
Conception scénographique (espaces et fonctionnements)
Conception et développement technique de la machinerie scénique / fauteuils / tribunes télescopiques / audiovisuel
Éclairage scénique / étude des visibilités
Scénographie
Avec sa façade en Corten facettisé, l’Espace Quérandeau se dresse au coeur de la ville, captant l’attention et la curiosité du passant. C’est un espace extraverti et ouvert : une Agora. L’immersion et la mise en scène commence dès l’extérieur ! En effet, la grande originalité de l’Espace Quérandeau, c’est qu’il s’ouvre sur un théâtre de verdure grâce à une porte monumentale. Tournés vers le parc paysagé, les artistes peuvent se produire devant un public extérieur, dans un cadre bucolique tout en profitant des éléments techniques de la scène. Coté mairie, le vaste hall d’accueil, baigné de lumière, offre aux visiteurs un instant de flânerie dans un espace d’exposition ouvert sur le bar et la billetterie.
Ainsi, toutes les façades aspirent et invitent le visiteur à découvrir cette salle modulable. Le concept spatial se veut pratique et efficace. La tribune télescopique joue le rôle d’un véritable curseur de jauge, elle se déploie partiellement ou totalement, offrant une jauge variable de 300 à 500 pl. assises. Une fois repliée, elle libère près de 500 m² de parterre pour accueillir de plain-pied des spectateurs debout, un salon, des ateliers ou une exposition. Les aménagements scéniques offrent une grande flexibilité d’usage, ils permettent de configurer la salle pour des concerts, des spectacles mais aussi en Cinéma une fois par semaine. Pour ce faire plusieurs outils scénographiques sont mis à contribution, notamment : un plancher de scène, des passerelles, des porteuses motorisée, une cabine de projection, une régie précablé et des réseaux Audiovisuel et Eclairage scénique. Les Illacais.es le disent « L’Espace Quérandeau est plus qu’une salle. Il offre à la ville et à ses habitants un lieu de rassemblement propice aux échanges et à la convivialité, hiver comme été ».
Missions
Conception scénographique (espaces et fonctionnements)
Conception et développement technique de la machinerie scénique / fauteuils / tribunes télescopiques / audiovisuel
Éclairage scénique / étude des visibilités