MAÎTRISE D’OUVRAGE
Équipe
Hérault Arnod Architectures : architectes
Lasa : acousticien


Programme
Surface bâtiment : 3 900 m²
Jauge : 1 200 / 500 & 350
Budget travaux : 11 M€ / budget scéno: 1.8 M€
Création de deux salles de musiques actuelles, studios, espaces techniques et logistiques
équipe ducks
Missions
Conception scénographique (espaces et fonctionnements) / Conception et développement technique des systèmes de machinerie scénique / Fauteuils, tribunes, plateformes / Audiovisuel / Eclairage scénique / Etude de visibilité
Coordination et suivi de projet / Suivi de chantier et réception
Scénographie
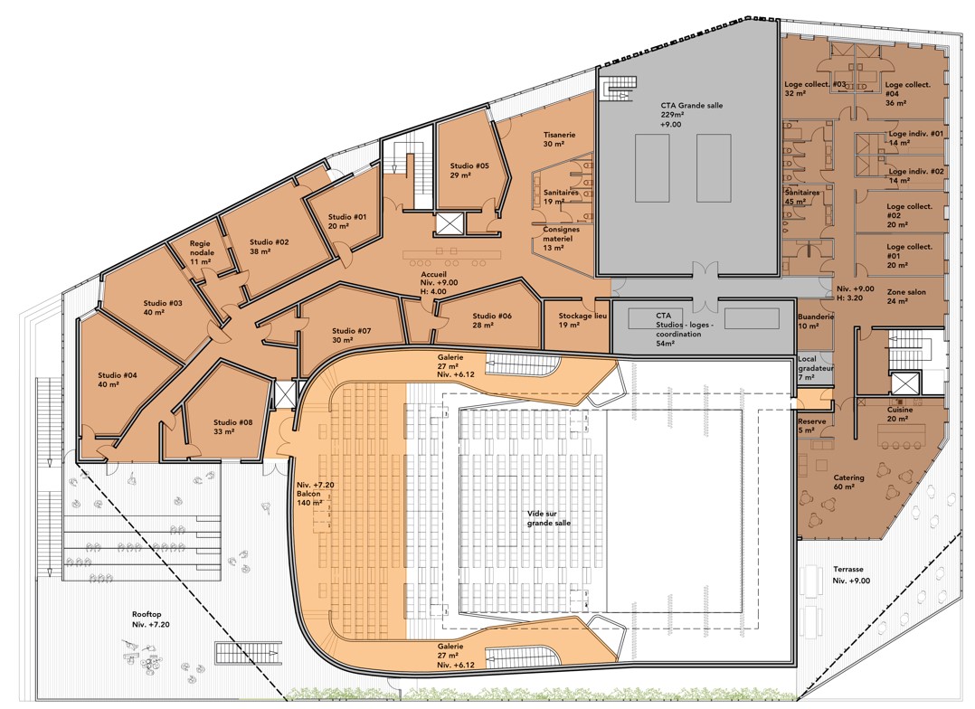
Les deux salles de diffusion ont des fonctions relativement spécifiques. Autonome ou liées, elles jouent toutes les deux une sorte de dialogue entre la performance de diffusion et la convivialité de l’ambiance. Pour chacune, le traitement scénographique des espaces et des éléments techniques permet de répondre avec une grande justesse aux fonctionnalités requises.
Les inflexions du site ont guidé le travail sur l’organisation des différents niveaux du projet. Du côté de la logistique, depuis la cour technique couverte, un quai de déchargement « à cul de camion » et un espace de jonction commun permettent de desservir de plain-pied l’arrière-scène et ses différents locaux techniques dédiés et les deux scènes. Du côté des spectateurs, l’accès est direct depuis la cote médiane du site et la grande terrasse, qui donne de plain-pied sur les deux halls et les parterres des deux salles.
La grande salle se déploie sur une succession de niveaux, de galeries et de balcons avec différents aménagements de gadins mobiles et fixes. Une fosse accueille le gradin télescopique principal qui une fois déployé comble cette fosse. Ainsi les premiers rangs de ce gadin peuvent accueillir les personnes à mobilité réduite et le rapport scène / parterre est adéquat. Le gradinage se poursuit avec deux niveaux de galeries venant embrasser l’avant-scène.
L’accès de la petite salle est de plain-pied entre le hall et le parterre bas. De larges emmarchements et une rampe assurent une liaison continue avec le parterre haut et le bar. De même, une rampe et des escaliers établissent un contact direct avec le plateau de scène, lui-même de plain-pied avec les espaces d’arrière-scène.
Missions
Conception scénographique (espaces et fonctionnements) / Conception et développement technique des systèmes de machinerie scénique / Fauteuils, tribunes, plateformes / Audiovisuel / Eclairage scénique / Etude de visibilité
Coordination et suivi de projet / Suivi de chantier et réception