MAÎTRISE D’OUVRAGE
Équipe
dUCKS scéno : scénographe mandataire
Global : OPC





Programme
Nombre de motorisation modernisée : 81 axes
Jauge : 687 pl
Ouverture Cadre : 10 m / profondeur scène : 12.5 m
Hauteur scène : 18 m
Budget travaux scéno : 1.08 M€
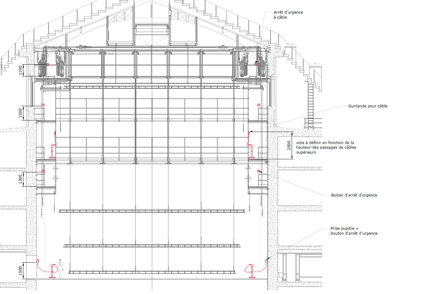
Remise à niveau du cintre informatisé existant, modernisation et sécurisation du système de pilotage de la machinerie scénique.
équipe ducks
Missions
Diagnostic et test performanciel de la machinerie scénique existante / analyse fonctionnelle des scénarios de travaux / planning des études, travaux et formations des utilisateurs
Conception et développement technique du nouveau système de pilotage / coordination et suivi de projet / suivi de chantier et réception / mandataire
Scénographie
Pour fiabiliser la création et la représentation de ses mises en scène, le Théâtre des Célestins de Lyon a sollicité notre expertise afin de moderniser et sécuriser son système de pilotage de machinerie scénique. Le cintre informatisé du théâtre est un outil essentiel du processus de création artistique. C’est un outil technique permettant le levage et le mouvement temporisé des décors. Il concentre de multiples enjeux incontournables dans l’accomplissement des missions du théâtre : il doit être fiable, sécurisé, appropriable et évolutif. Un diagnostic affiné des équipements de levage existants (mécaniques, électroniques, logiciel) et une démarche collaborative impliquée avec les équipes techniques du théâtre nous a permis de concevoir un nouveau cintre informatisé spécifiquement adapté
aux besoins et aux usages du théâtre des Célestins. Le développement du nouveau système de pilotage s’est accompagné d’une mise à niveau intégrant les dernières normes en vigueurs traitant des machineries et technologies du spectacle. Le nouvel outil de pilotage garanti désormais un haut niveau de sécurité et de fiabilité. Il permet d’accompagner et d’imaginer des mises en scène sollicitant plus de 80 axes motorisés. Il facilite la maintenance à distance et offre un très haut niveau de confiance homme/ machine, grâce notamment à un pupitre et une interface logicielle très ergonomique.
Missions
Diagnostic et test performanciel de la machinerie scénique existante / analyse fonctionnelle des scénarios de travaux / planning des études, travaux et formations des utilisateurs
Conception et développement technique du nouveau système de pilotage / coordination et suivi de projet / suivi de chantier et réception / mandataire