MAÎTRISE D’OUVRAGE
Équipe
Pellen Daudé : architecte
dUCKS sceno : scénographe






Programme
Jauge : 350 places
Ouverture Cadre : 7 m
Profondeur scène : 8 m
Budget travaux : 2.6 M€ / budget scéno: 371 000 €
Rénovation machinerie, réseaux audiovisuel et éclairage scénique
équipe ducks
Missions
Conception scénographique (espaces et fonctionnements)
Conception et développement technique des systèmes de machinerie scénique / audiovisuel / éclairage
Étude de visibilité
Coordination et suivi de projet
Suivi de chantier et réception
Scénographie
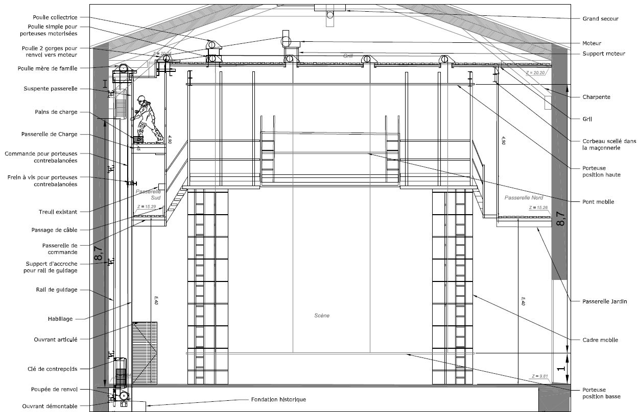
Le théâtre de Tarascon est aménagé dans une église gothique désaffectée. Depuis sa rénovation en 1989, aucun travaux d’envergure n’avaient été réalisé. En 2017, la Mairie décide d’engager des travaux de restauration patrimoniale du lieu incluant la mise à niveau des équipements scénographiques.
L’audit des équipements scéniques réalisé par dUCKS scéno a démontré l’obsolescence des réseaux scéniques et de la machinerie manuelle du plateau. Le projet a permis de remplacer les anciennes équipes à tirage manuel par des équipes contrebalancées palanquées, moins dangereuses et plus adaptées, ainsi que de réaliser la mise a niveau des porteuses motorisées. La structure du gril a été renforcée pour supporter des charges supplémentaires en adéquation avec la scénographie moderne. Le treuil du rideau de fer a été modernisé. Les dessous de scène en bois, ont été conservés pour leur grande valeur patrimoniale.
L’intégralité des réseaux scénique a également été purgée et remplacée par une infrastructure adaptée aux dernières technologies utilisées dans le spectacle vivant. dUCKS scéno a également apporté son expertise pour permettre la mise aux normes d’accessibilité de la salle.
Le théâtre rouvre ses portes en décembre 2022.
Missions
Conception scénographique (espaces et fonctionnements)
Conception et développement technique des systèmes de machinerie scénique / audiovisuel / éclairage
Étude de visibilité
Coordination et suivi de projet
Suivi de chantier et réception